| ||||||||||||||||||||||||||||
Скачать ГОСТ Р 54418.25.4-2014 Возобновляемая энергетика. Ветроэнергетика. Установки ветроэнергетические. Часть 25-4. Коммуникации для текущего контроля и управления ветровыми электростанциями. Отображение совокупности параметров в процессах передачи информацииДата актуализации: 01.06.2025
| ||||||||||||||||||||||||||||
| Обозначение: | ![]() ГОСТ Р 54418.25.4-2014 |
| Статус: | действующий |
| Название рус.: | Возобновляемая энергетика. Ветроэнергетика. Установки ветроэнергетические. Часть 25-4. Коммуникации для текущего контроля и управления ветровыми электростанциями. Отображение совокупности параметров в процессах передачи информации |
| Дата актуализации текста: | 01.01.2021 |
| Дата актуализации описания: | 01.07.2023 |
| Дата издания: | 08.10.2015 |
| Дата введения: | 01.07.2016 |
| Содержит требования: | IEC 61400-25-4(2008) |
| Нормативные ссылки: | ГОСТ Р МЭК 870-5-5-96; ГОСТ Р ИСО 8326-95; ГОСТ Р ИСО/МЭК 8824-93; ГОСТ Р ИСО/МЭК 8825-1-2003; ГОСТ Р 54418.25.2-2014; ГОСТ Р 54418.25.3-2014; ГОСТ Р 54418.25.5-2013; ГОСТ Р МЭК 60870-5-101-2006; ГОСТ Р МЭК 60870-5-104-2004; ГОСТ Р МЭК 61850-6-2009; ГОСТ Р МЭК 61850-7-1-2009; ГОСТ Р МЭК 61850-7-2-2009; ГОСТ Р МЭК 61850-7-3-2009 |
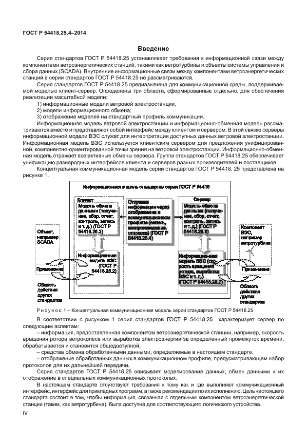
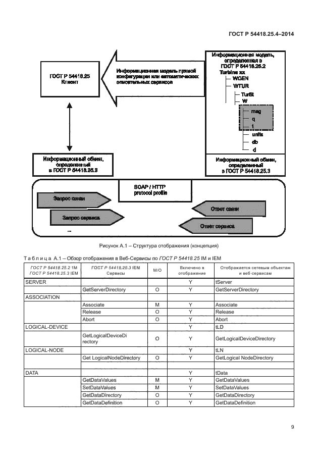
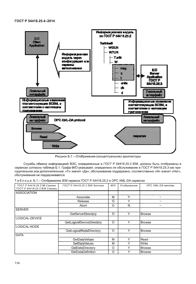
| Область применения: | Настоящий стандарт определяет особые отображения стеков протоколов кодирующих сообщения, необходимые для информационного обмена между клиентом и удаленным сервером, для: - доступа к данным и их вывода; - управления устройства; - отчеты и ведение журнала событий; - сервисов публикаций и подписок; - самоописания устройств (словарь данных устройства); - распределения данных по типам и открытия типов данных |
| Расположен в: | |













































































































































































































