Информационная система
«Ёшкин Кот»

Скачать базу одним архивом
Скачать обновления
История создания базы
Карта сайта

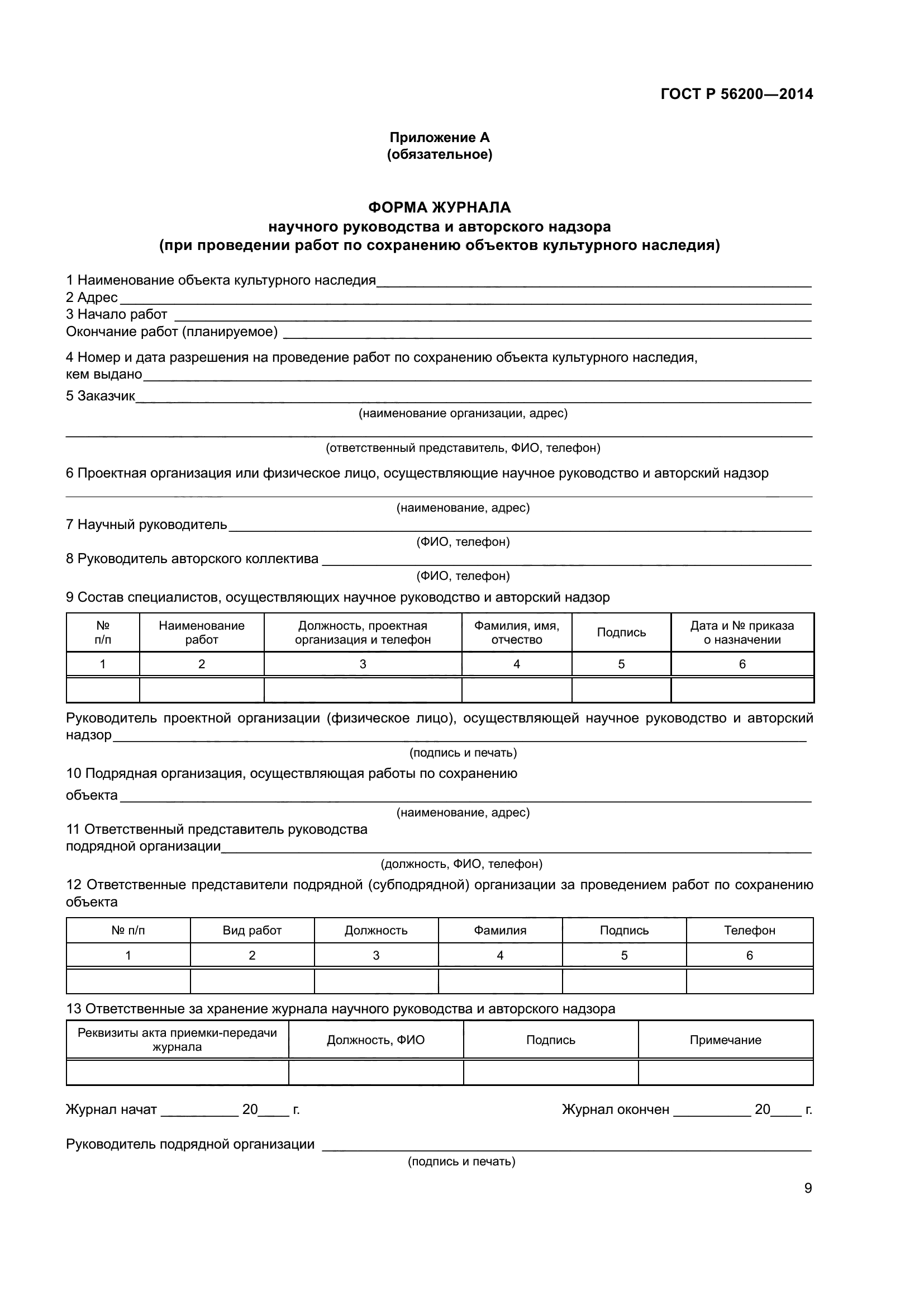
Скачать ГОСТ Р 56200-2014 Научное руководство и авторский надзор при проведении работ по сохранению объектов культурного наследия. Основные положения

Дата актуализации: 01.06.2025

ГОСТ Р 56200-2014

Научное руководство и авторский надзор при проведении работ по сохранению объектов культурного наследия. Основные положения

Обозначение: ГОСТ Р 56200-2014
Статус:действующий
Название рус.:Научное руководство и авторский надзор при проведении работ по сохранению объектов культурного наследия. Основные положения
Дата актуализации текста:01.06.2022
Дата актуализации описания:01.07.2023
Дата издания:29.11.2019
Дата введения:01.02.2015
Нормативные ссылки:ГОСТ Р 21.1101;ГОСТ Р 55528;ГОСТ Р 55567;ГОСТ Р 55627;ГОСТ Р 55653;ГОСТ Р 55935;ГОСТ Р 55945;ГОСТ 2.105
Область применения:Настоящий стандарт устанавливает общий порядок организации и осуществления научного руководства и авторского надзора на объектах культурного наследия (памятниках истории и культуры) народов Российской Федерации при проведении работ по их сохранению, за исключением работ по сохранению движимых объектов, относящихся к музейному фонду Российской Федерации. Настоящий стандарт предназначен для применения федеральным органом исполнительной власти, уполномоченным в области сохранения, использования, популяризации и государственной охраны объектов культурного наследия, его территориальными органами, органами исполнительной власти субъектов Российской Федерации, уполномоченными в области сохранения, использования, популяризации и государственной охраны объектов культурного наследия, их подведомственными организациями, собственниками и пользователями объектов культурного наследия, государственными и муниципальными заказчиками в сфере сохранения и охраны объектов культурного наследия, юридическими и физическими лицами, осуществляющими деятельность по сохранению объектов культурного наследия (памятников истории и культуры) народов Российской Федерации
Расположен в:Государственные стандарты Общероссийский классификатор стандартов Бытовая техника и торговое оборудование. Отдых. Спорт Предметы искусства и ремесел Классификатор государственных стандартов Общетехнические и организационно-методические стандарты Система документации Система проектно-конструкторской документации
ГОСТ Р 56200-2014ГОСТ Р 56200-2014ГОСТ Р 56200-2014ГОСТ Р 56200-2014ГОСТ Р 56200-2014ГОСТ Р 56200-2014ГОСТ Р 56200-2014ГОСТ Р 56200-2014ГОСТ Р 56200-2014ГОСТ Р 56200-2014ГОСТ Р 56200-2014ГОСТ Р 56200-2014ГОСТ Р 56200-2014ГОСТ Р 56200-2014ГОСТ Р 56200-2014ГОСТ Р 56200-2014

© 2013 Ёшкин Кот :-) Карта сайта