| Обозначение: |  ГОСТ Р 56143-2014 |
| Статус: | действующий |
| Название рус.: | Испытания разрушающие сварных швов металлических материалов. Испытания на сопротивляемость образованию холодных трещин в сварных соединениях. Процессы дуговой сварки. Часть 3. Испытания с приложением внешней нагрузки |
| Дата актуализации текста: | 01.01.2021 |
| Дата актуализации описания: | 01.07.2023 |
| Дата издания: | 03.04.2020 |
| Дата введения: | 01.01.2016 |
| Содержит требования: | ISO 17642-3:2005 |
| Нормативные ссылки: | ГОСТ Р ИСО 17642-1-2011; ГОСТ 2999; ГОСТ 23338 |
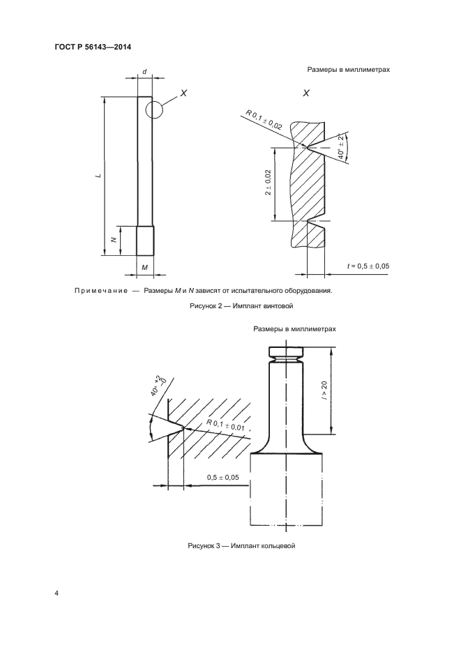
| Область применения: | Настоящий стандарт устанавливает размеры образцов и процедуры выполнения имплант-испытаний на сопротивляемость образованию холодных трещин в сварных соединениях под действием внешней нагрузки. Настоящий стандарт применяется для углеродистых, марганцовистых и низколегированных сталей |
|
| Расположен в: |
|