| Обозначение: |  ГОСТ Р 56077-2014 |
| Статус: | действующий |
| Название рус.: | Методы аэродинамических испытаний конструкций и оборудования противодымной защиты зданий |
| Дата актуализации текста: | 01.06.2022 |
| Дата актуализации описания: | 01.07.2023 |
| Дата издания: | 03.10.2019 |
| Дата введения: | 01.03.2015 |
| Код ОКП: | 486367 |
| Нормативные ссылки: | ГОСТ 12.2.003; ГОСТ 12.3.018; ГОСТ Р 8.585; ГОСТ 12.1.019 |
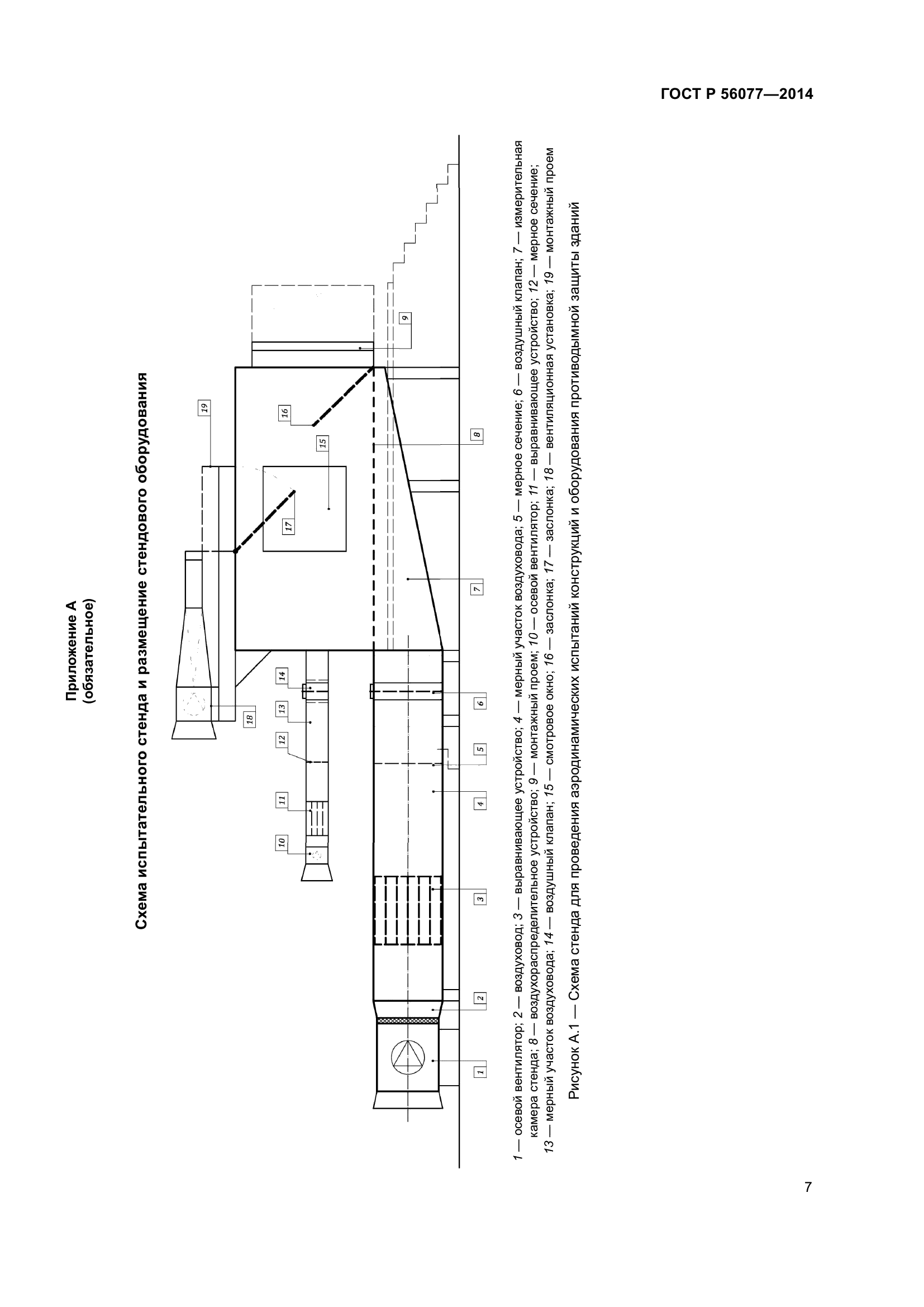
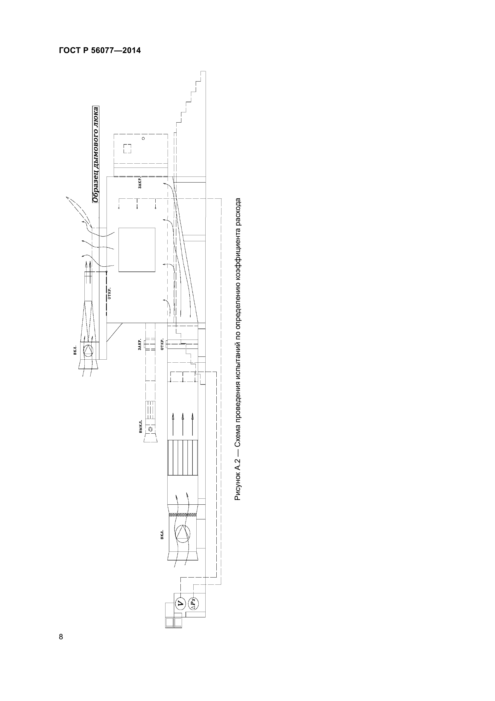
| Область применения: | Настоящий стандарт устанавливает требования к методам аэродинамических испытаний следующих конструкций и оборудования противодымной защиты зданий: - дымовых люков систем вытяжной противодымной вентиляции с естественным побуждением тяги (далее - дымовых люков); - дверей противопожарных, дверей противопожарных в дымогазонепроницаемом исполнении, дверей шахт лифтов, дверей с ненормируемым пределом огнестойкости (далее - дверей различного функционального назначения); - нормально закрытых и нормально открытых противопожарных клапанов вентиляционных систем (далее - противопожарных клапанов). Цель испытаний по данному стандарту состоит в экспериментальном определении коэффициентов расхода дымовых люков и противопожарных клапанов и удельного сопротивления воздухопроницанию противопожарных клапанов и дверей различного функционального назначения |
|
| Расположен в: |
|