| Обозначение: |  ГОСТ ISO 4656-2013 |
| Статус: | действующий |
| Название рус.: | Ингредиенты резиновой смеси. Углерод технический гранулированный. Определение числа абсорбции масла (OAN) и числа абсорбции масла сжатого образца (COAN) |
| Название англ.: | Rubber compounding ingredients. Carbon black. Determination of oil absorption number (OAN) and oil absorption number of compressed sample (COAN) |
| Дата актуализации текста: | 01.01.2021 |
| Дата актуализации описания: | 01.07.2023 |
| Дата регистрации: | 27.09.2013 |
| Дата издания: | 01.08.2014 |
| Дата введения: | 01.01.2016 |
| Аутентичен стандартам: | ISO 4656:2012 |
| Нормативные ссылки: | ISO 1126;ASTM D 1765;ASTM D 4821 |
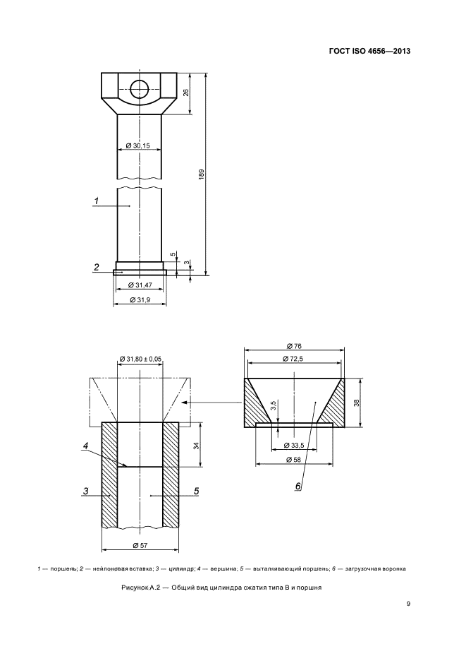
| Область применения: | Настоящий стандарт устанавливает метод определения числа абсорбции масла технического углерода, предназначенного для применения в резиновой промышленности, с использованием абсорбтометра. Данный метод также применяется для определения числа абсорбции масла сжатых образцов технического углерода. Процедура приготовления сжатых проб приведена в приложении А |
|
| Расположен в: |
|