Информационная система
«Ёшкин Кот»

Скачать базу одним архивом
Скачать обновления
История создания базы
Карта сайта

Скачать ГОСТ Р ИСО 15370-2014 Суда и морские технологии. Низкорасположенное освещение (НРО) на пассажирских судах. Расположение

Дата актуализации: 01.06.2025

ГОСТ Р ИСО 15370-2014

Суда и морские технологии. Низкорасположенное освещение (НРО) на пассажирских судах. Расположение

Обозначение: ГОСТ Р ИСО 15370-2014
Статус:действующий
Название рус.:Суда и морские технологии. Низкорасположенное освещение (НРО) на пассажирских судах. Расположение
Дата актуализации текста:06.04.2015
Дата актуализации описания:01.07.2023
Дата издания:30.07.2014
Дата введения:01.09.2014
Код ОКП:646300
Аутентичен стандартам:ISO 15370:2010
Нормативные ссылки:ISO 3864-1:2002;ISO 16069:2004;IEC 60092-101;IEC 60529;IEC 60598-2-22;IEC 60945
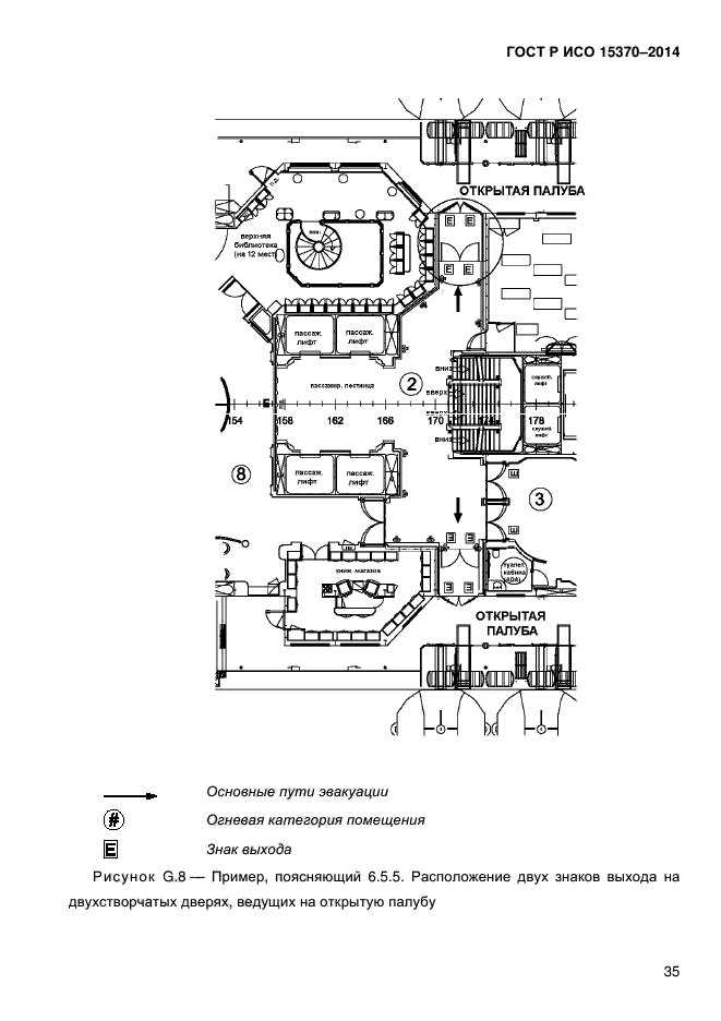
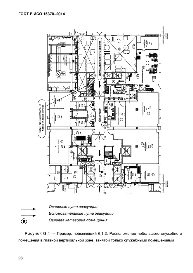
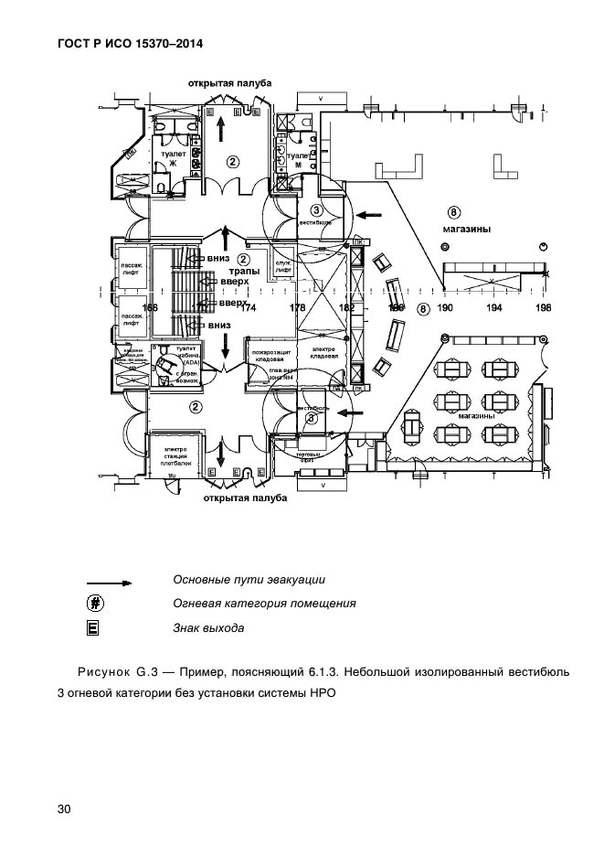
Область применения:Настоящий стандарт устанавливает требования к установке, проверке и техническому обслуживанию систем световых эвакуационных указателей, согласно Главе II-2, Правило 13.3.2.5.1 Международной конвенции по охране человеческой жизни на море 1974 (СОЛАС-74) с поправками 2000 года, согласно Международному кодексу по системам противопожарной безопасности, принятому Резолюцией ИМО MSC.98(73), а также согласно Резолюции ИМО А.752(18) «Руководство по оценке, испытаниям и применению низкорасположенного освещения на пассажирских судах»
Расположен в:Государственные стандарты Общероссийский классификатор стандартов Судостроение и морские сооружения Судостроение и морские сооружения в целом Судостроение и морские сооружения, прочие аспекты Классификатор государственных стандартов Транспортные средства и тара Судостроение Судовые механизмы и котлы Окп Судовое оборудование Судовое электротехническое оборудование Судовое светотехническое оборудование
ГОСТ Р ИСО 15370-2014ГОСТ Р ИСО 15370-2014ГОСТ Р ИСО 15370-2014ГОСТ Р ИСО 15370-2014ГОСТ Р ИСО 15370-2014ГОСТ Р ИСО 15370-2014ГОСТ Р ИСО 15370-2014ГОСТ Р ИСО 15370-2014ГОСТ Р ИСО 15370-2014ГОСТ Р ИСО 15370-2014ГОСТ Р ИСО 15370-2014ГОСТ Р ИСО 15370-2014ГОСТ Р ИСО 15370-2014ГОСТ Р ИСО 15370-2014ГОСТ Р ИСО 15370-2014ГОСТ Р ИСО 15370-2014ГОСТ Р ИСО 15370-2014ГОСТ Р ИСО 15370-2014ГОСТ Р ИСО 15370-2014ГОСТ Р ИСО 15370-2014ГОСТ Р ИСО 15370-2014ГОСТ Р ИСО 15370-2014ГОСТ Р ИСО 15370-2014ГОСТ Р ИСО 15370-2014ГОСТ Р ИСО 15370-2014ГОСТ Р ИСО 15370-2014ГОСТ Р ИСО 15370-2014ГОСТ Р ИСО 15370-2014ГОСТ Р ИСО 15370-2014ГОСТ Р ИСО 15370-2014ГОСТ Р ИСО 15370-2014ГОСТ Р ИСО 15370-2014ГОСТ Р ИСО 15370-2014ГОСТ Р ИСО 15370-2014ГОСТ Р ИСО 15370-2014ГОСТ Р ИСО 15370-2014ГОСТ Р ИСО 15370-2014ГОСТ Р ИСО 15370-2014ГОСТ Р ИСО 15370-2014ГОСТ Р ИСО 15370-2014ГОСТ Р ИСО 15370-2014ГОСТ Р ИСО 15370-2014ГОСТ Р ИСО 15370-2014ГОСТ Р ИСО 15370-2014

© 2013 Ёшкин Кот :-) Карта сайта