| ||||||||||||||||||||||||||||||||||
Скачать ГОСТ Р 55941-2014 Рельсы трамвайные желобчатые. Технические условияДата актуализации: 01.06.2025
| ||||||||||||||||||||||||||||||||||
| Обозначение: | ![]() ГОСТ Р 55941-2014 |
| Статус: | действующий |
| Название рус.: | Рельсы трамвайные желобчатые. Технические условия |
| Дата актуализации текста: | 01.01.2021 |
| Дата актуализации описания: | 01.07.2023 |
| Дата издания: | 29.11.2019 |
| Дата введения: | 01.01.2015 |
| Нормативные ссылки: | ГОСТ Р 8.563; ГОСТ Р 50542; ГОСТ Р 51685; ГОСТ 1497; ГОСТ 7502; ГОСТ 7565; ГОСТ 7566; ГОСТ 9012; ГОСТ 18895; ГОСТ 21014; ГОСТ 22536.0; ГОСТ 22536.1; ГОСТ 22536.2; ГОСТ 22536.3; ГОСТ 22536.4; ГОСТ 22536.5; ГОСТ 22536.7; ГОСТ 22536.8; ГОСТ 22536.9; ГОСТ 22536.12 |
| Область применения: | Настоящий стандарт распространяется на трамвайные желобчатые рельсы (далее - рельсы), предназначенные для путей городского электрического транспорта |
| Список изменений: | №0 от 18.02.2016 (рег. 18.02.2016) «Дата введения перенесена» |
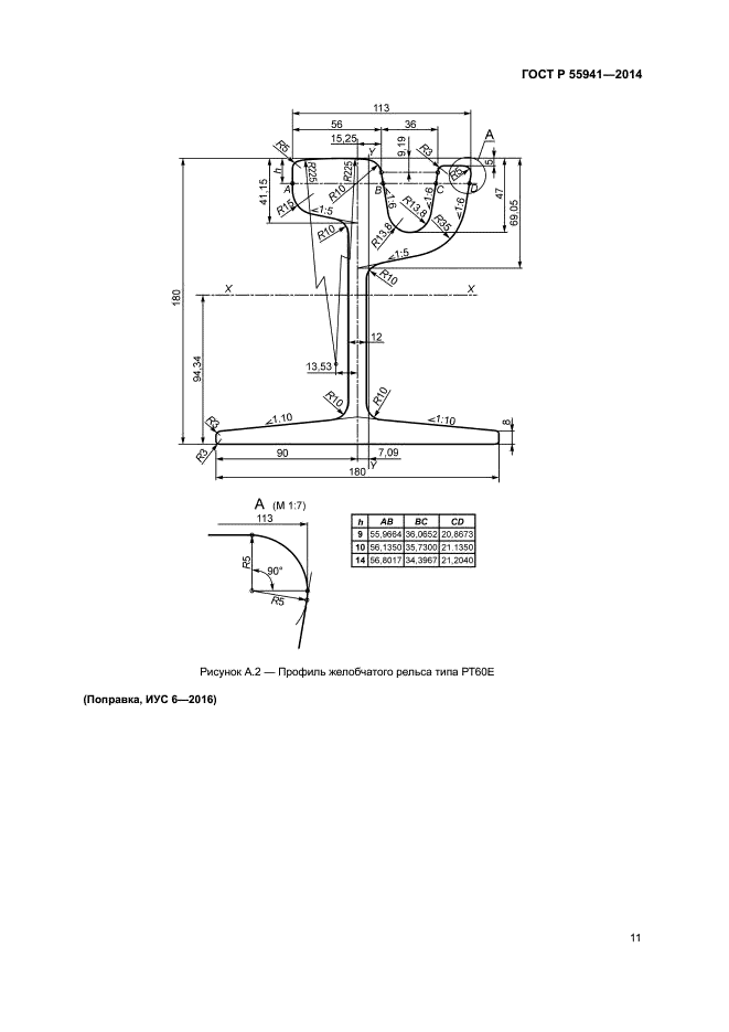
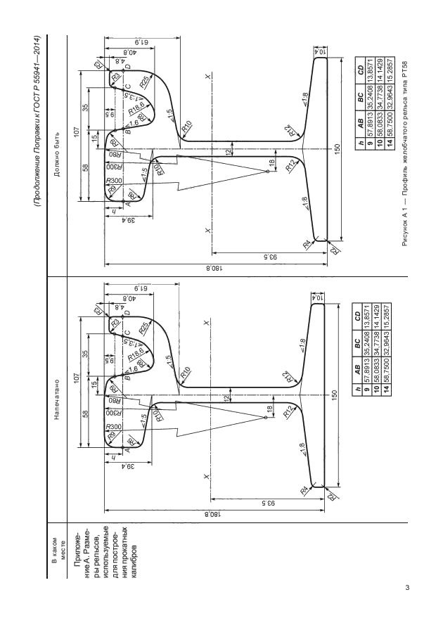
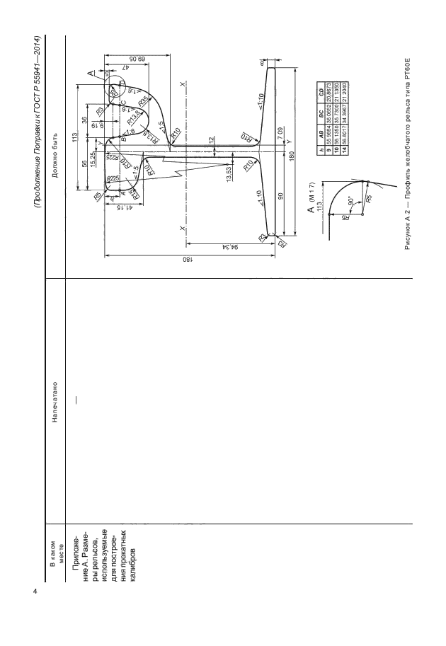
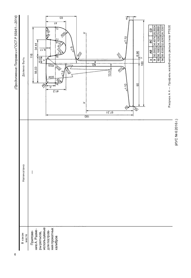
| Приложение №1: | Поправка к ГОСТ Р 55941-2014 |
| Расположен в: | |



















| Обозначение: | Поправка к ГОСТ Р 55941-2014 |
| Дата введения: | 18.02.2016 |





