Информационная система
«Ёшкин Кот»

Скачать базу одним архивом
Скачать обновления
История создания базы
Карта сайта

Скачать ГОСТ Р 50571.7.702-2013 Электроустановки низковольтные. Часть 7. Требования к специальным установкам или местам из размещения. Раздел 702. Плавательные бассейны и фантаны

Дата актуализации: 01.06.2025

ГОСТ Р 50571.7.702-2013

Электроустановки низковольтные. Часть 7. Требования к специальным установкам или местам из размещения. Раздел 702. Плавательные бассейны и фантаны

Обозначение: ГОСТ Р 50571.7.702-2013
Статус:действующий
Название рус.:Электроустановки низковольтные. Часть 7. Требования к специальным установкам или местам из размещения. Раздел 702. Плавательные бассейны и фантаны
Дата актуализации текста:01.01.2021
Дата актуализации описания:01.07.2023
Дата издания:09.12.2019
Дата введения:01.01.2015
Код ОКП:346400
Аутентичен стандартам:IEC 60364-7-702(2010)
Нормативные ссылки:IEC 60245 (all parts);IEC 60335-2-41;IEC 60364-4-41(2005);IEC 60529(1989);IEC 60598-2-18;IEC 61386-1
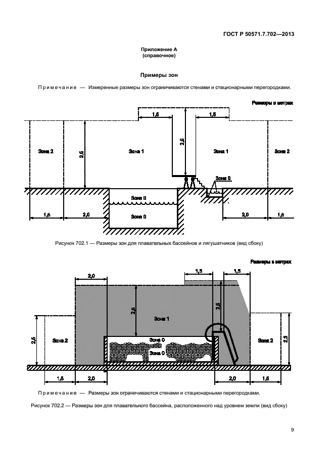
Область применения:Настоящий стандарт распространяется на электрические установки: - ванн плавательных бассейнов и лягушатников и зон их окружающих; - зон естественных водоемов, обводненных карьерах, прибрежных и подобных зон, предназначенных, для плавания, ныряния и подобных целей и их окружающих зон. Такие зоны рассматриваются как плавательные бассейны; - ванн фонтанов и их окружающих зон. К бассейнам для медицинского применения могут предъявляться специальные требования. Настоящий стандарт не распространяется на мобильное оборудование, например, оборудование для очистки бассейна
Расположен в:Государственные стандарты Общероссийский классификатор стандартов Электротехника Электротехника в целом Строительные материалы и строительство Установки в зданиях Системы электроснабжения Классификатор государственных стандартов Энергетическое и электротехническое оборудование Электрические аппараты и арматура Аппараты напряжением до 1000 В Окп Оборудование и материалы электротехнические Оборудование светотехническое и изделия электроустановочные. Лампы электрические. Изделия культурно-бытового назначения и хозяйственного обихода Изделия электроустановочные
ГОСТ Р 50571.7.702-2013ГОСТ Р 50571.7.702-2013ГОСТ Р 50571.7.702-2013ГОСТ Р 50571.7.702-2013ГОСТ Р 50571.7.702-2013ГОСТ Р 50571.7.702-2013ГОСТ Р 50571.7.702-2013ГОСТ Р 50571.7.702-2013ГОСТ Р 50571.7.702-2013ГОСТ Р 50571.7.702-2013ГОСТ Р 50571.7.702-2013ГОСТ Р 50571.7.702-2013ГОСТ Р 50571.7.702-2013ГОСТ Р 50571.7.702-2013ГОСТ Р 50571.7.702-2013ГОСТ Р 50571.7.702-2013ГОСТ Р 50571.7.702-2013ГОСТ Р 50571.7.702-2013ГОСТ Р 50571.7.702-2013

© 2013 Ёшкин Кот :-) Карта сайта