Информационная система
«Ёшкин Кот»

Скачать базу одним архивом
Скачать обновления
История создания базы
Карта сайта

Скачать ГОСТ Р 55724-2013 Контроль неразрушающий. Соединения сварные. Методы ультразвуковые

Дата актуализации: 01.06.2025

ГОСТ Р 55724-2013

Контроль неразрушающий. Соединения сварные. Методы ультразвуковые

Обозначение: ГОСТ Р 55724-2013
Статус:действующий
Название рус.:Контроль неразрушающий. Соединения сварные. Методы ультразвуковые
Дата актуализации текста:01.01.2021
Дата актуализации описания:01.07.2023
Дата издания:16.06.2019
Дата введения:01.07.2015
Нормативные ссылки:ГОСТ 12.1.001;ГОСТ 12.1.003;ГОСТ 12.1.004;ГОСТ 12.2.003;ГОСТ 12.3.002;ГОСТ 2789;ГОСТ 18576-96;ГОСТ Р 55725;ГОСТ Р 55808;ГОСТ Р 56542-2015
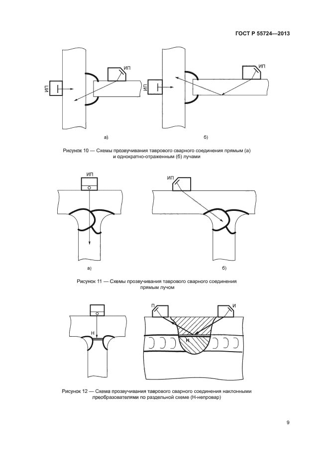
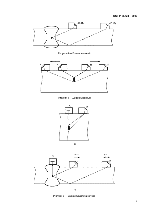
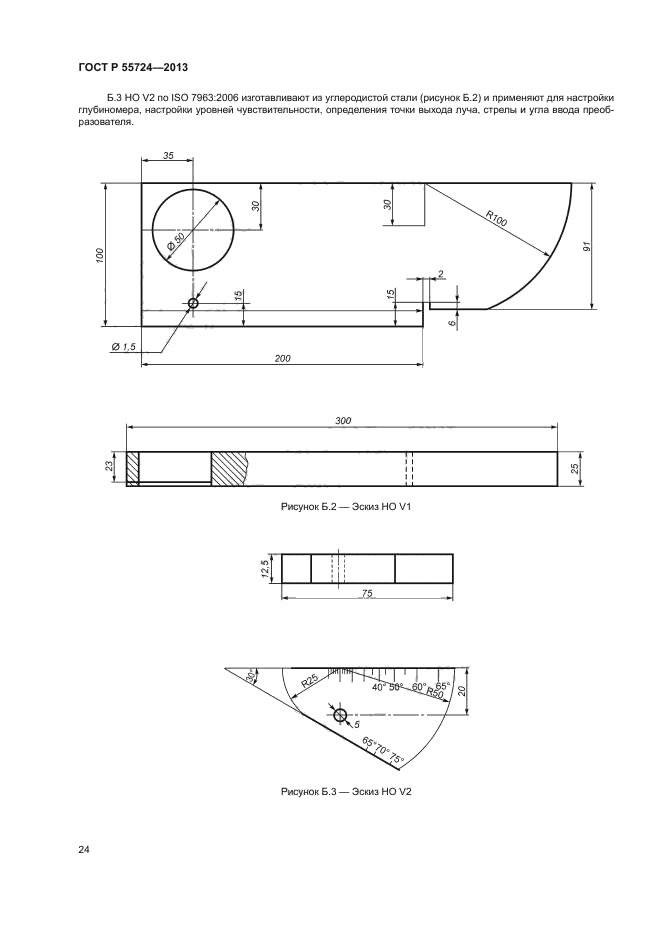
Область применения:Настоящий стандарт устанавливает методы ультразвукового контроля стыковых, угловых, нахлесточных и тавровых соединений с полным проваром корня шва, выполненных дуговой, электрошлаковой, газовой, газопрессовой, электронно-лучевой, лазерной и стыковой сваркой оплавлением или их комбинациями в сварных изделиях из металлов и сплавов для выявления следующих несплошностей: трещин, непроваров, пор, неметаллических и металлических включений. Настоящий стандарт не регламентирует методы определения реальных размеров, типа и формы выявленных несплошностей (дефектов) и не распространяется на контроль антикоррозионных наплавок. Необходимость проведения и объем ультразвукового контроля, типы и размеры несплошностей (дефектов), подлежащих обнаружению, устанавливаются в стандартах или конструкторской документации на продукцию
Расположен в:Государственные стандарты Общероссийский классификатор стандартов Испытания Неразрушающие испытания Классификатор государственных стандартов Металлы и металлические изделия Общие правила и нормы по металлургии Методы испытаний. Упаковка. Маркировка
ГОСТ Р 55724-2013ГОСТ Р 55724-2013ГОСТ Р 55724-2013ГОСТ Р 55724-2013ГОСТ Р 55724-2013ГОСТ Р 55724-2013ГОСТ Р 55724-2013ГОСТ Р 55724-2013ГОСТ Р 55724-2013ГОСТ Р 55724-2013ГОСТ Р 55724-2013ГОСТ Р 55724-2013ГОСТ Р 55724-2013ГОСТ Р 55724-2013ГОСТ Р 55724-2013ГОСТ Р 55724-2013ГОСТ Р 55724-2013ГОСТ Р 55724-2013ГОСТ Р 55724-2013ГОСТ Р 55724-2013ГОСТ Р 55724-2013ГОСТ Р 55724-2013ГОСТ Р 55724-2013ГОСТ Р 55724-2013ГОСТ Р 55724-2013ГОСТ Р 55724-2013ГОСТ Р 55724-2013ГОСТ Р 55724-2013ГОСТ Р 55724-2013ГОСТ Р 55724-2013ГОСТ Р 55724-2013

© 2013 Ёшкин Кот :-) Карта сайта