| Обозначение: |  ГОСТ Р 55260.3.2-2013 |
| Статус: | заменён |
| Название рус.: | Гидроэлектростанции. Часть 3-2. Гидротурбины. Методики оценки технического состояния |
| Дата актуализации текста: | 01.01.2021 |
| Дата актуализации описания: | 01.01.2024 |
| Дата издания: | 15.12.2015 |
| Дата введения: | 01.07.2015 |
| Дата окончания срока действия: | 01.01.2024 |
| Заменяющий: | ГОСТ Р 55260.3.2-2023 |
| Нормативные ссылки: | ГОСТ Р 8.563-2009 ; ГОСТ Р 54130-2010; ГОСТ 2.601-2006; ГОСТ 8.439-81; ГОСТ 32-74; ГОСТ 27.002-89; ГОСТ 5616-89; ГОСТ 16504-81; ГОСТ 19431-84; ГОСТ 19919-74 ; ГОСТ 20911-89; ГОСТ 22373-82; ГОСТ 25866-83; ГОСТ 27528-87; ГОСТ 27807-88; ГОСТ 28446-90; ГОСТ 28842-90; ГОСТ 15467-79 |
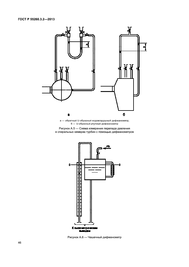
| Область применения: | Настоящий стандарт определяет нормы и объем контроля состояния гидротурбин, минимально необходимого для оценки исправности и/или работоспособности контролируемых установок, а также для принятия решений о проведении технических обследований по специальным программам в целях определения остаточного ресурса и/или продления срока службы. Настоящий стандарт устанавливает порядок и правила оценки технического состояния гидротурбин при: - постоянном контроле состояния работающего оборудования; - периодических осмотрах выведенного из работы оборудования; - технических освидетельствованиях оборудования; - технических обследованиях оборудования. Настоящий стандарт устанавливает методики измерений контролируемых параметров и испытаний гидротурбин, применяемые при комплексных и индивидуальных технических обследованиях. Настоящий стандарт не устанавливает требования к типам и видам используемых при техническом контроле штатной контрольной аппаратуры и специальных средств измерений |
|
| Расположен в: |
|