Информационная система
«Ёшкин Кот»

Скачать базу одним архивом
Скачать обновления
История создания базы
Карта сайта

Скачать ГОСТ ISO 12863-2013 Сигареты. Стандартный метод испытания для оценки воспламеняющей способности

Дата актуализации: 01.06.2025

ГОСТ ISO 12863-2013

Сигареты. Стандартный метод испытания для оценки воспламеняющей способности

Обозначение: ГОСТ ISO 12863-2013
Статус:действующий
Название рус.:Сигареты. Стандартный метод испытания для оценки воспламеняющей способности
Дата актуализации текста:01.01.2021
Дата актуализации описания:01.01.2021
Дата регистрации:14.11.2013
Дата издания:30.10.2019
Дата введения:01.01.2015
Аутентичен стандартам:ISO 12863:2010
Нормативные ссылки:ISO 13943;ГОСТ 31632-2012;ASTM E 2187
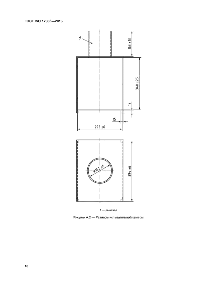
Область применения:Настоящий стандарт устанавливает метод оценки способности горящей сигареты, помещенной на один из трех стандартных комплектов основ, затухать или производить достаточно тепла для продолжения горения, что потенциально может стать причиной воспламенения постельных принадлежностей или обивки мебели. Настоящий стандарт распространяется на сигареты, произведенные промышленным способом, которые сгорают по длине табачного штранга. Стандарт основан на оценке полученных результатов испытаний, он не описывает каких-либо конструктивных особенностей сигареты, которые могут привести к улучшенным или ухудшенным показателям при проведении испытаний. Результат, полученный с помощью этого метода, был соотнесен с потенциальной возможностью сигарет являться источником возгорания тканевой обивки мебели
Приложение №1:Поправка к ГОСТ ISO 12863-2013
Расположен в:Государственные стандарты Общероссийский классификатор стандартов Охрана окружающей среды, защита человека от воздействия окружающей среды. Безопасность Защита от пожаров Воспламеняемость, поведение материалов и продуктов при горении Сельское хозяйство Табак, табачные изделия и соответствующее оборудование Классификатор государственных стандартов Пищевые и вкусовые продукты Табачные изделия Методы испытаний. Упаковка. Маркировка
ГОСТ ISO 12863-2013ГОСТ ISO 12863-2013ГОСТ ISO 12863-2013ГОСТ ISO 12863-2013ГОСТ ISO 12863-2013ГОСТ ISO 12863-2013ГОСТ ISO 12863-2013ГОСТ ISO 12863-2013ГОСТ ISO 12863-2013ГОСТ ISO 12863-2013ГОСТ ISO 12863-2013ГОСТ ISO 12863-2013ГОСТ ISO 12863-2013ГОСТ ISO 12863-2013ГОСТ ISO 12863-2013ГОСТ ISO 12863-2013ГОСТ ISO 12863-2013ГОСТ ISO 12863-2013ГОСТ ISO 12863-2013ГОСТ ISO 12863-2013ГОСТ ISO 12863-2013ГОСТ ISO 12863-2013ГОСТ ISO 12863-2013ГОСТ ISO 12863-2013

Поправка к ГОСТ ISO 12863-2013

Обозначение:Поправка к ГОСТ ISO 12863-2013
Дата введения:20.06.2019


Поправка к ГОСТ ISO 12863-2013

© 2013 Ёшкин Кот :-) Карта сайта