| Обозначение: |  ГОСТ Р ИСО 16322-2-2013 |
| Статус: | действующий |
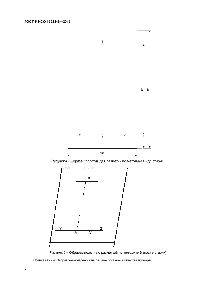
| Название рус.: | Материалы текстильные. Определение перекоса после стирки. Часть 2. Ткани и трикотажные полотна |
| Дата актуализации текста: | 01.08.2015 |
| Дата актуализации описания: | 01.07.2023 |
| Дата издания: | 01.04.2015 |
| Дата введения: | 01.01.2015 |
| Аутентичен стандартам: | ISO 16322-2:2005 |
| Нормативные ссылки: | ГОСТ Р ИСО 139:2005; ГОСТ Р ИСО 6330:2012 |
| Область применения: | Эта часть ГОСТ Р ИСО 16322 устанавливает три методики измерения перекоса или закручивания тканей и трикотажных полотен после стирки. Результаты, полученные по различным методикам, сравнению не подлежат. Эта часть ГОСТ Р ИСО 16322 не предназначена для измерения перекоса готовых полотен, а применима лишь к оценке перекоса после стирки |
|
| Расположен в: |
|