| Обозначение: |  ГОСТ Р 55191-2012 |
| Статус: | действующий |
| Название рус.: | Методы испытаний высоким напряжением. Измерения частичных разрядов |
| Дата актуализации текста: | 10.06.2020 |
| Дата актуализации описания: | 01.07.2023 |
| Дата издания: | 29.11.2019 |
| Дата введения: | 01.01.2014 |
| Код ОКП: | 341000 |
| Содержит требования: | IEC 60270(2000) |
| Нормативные ссылки: | ГОСТ Р 55193-2012; ГОСТ Р 51320-99 |
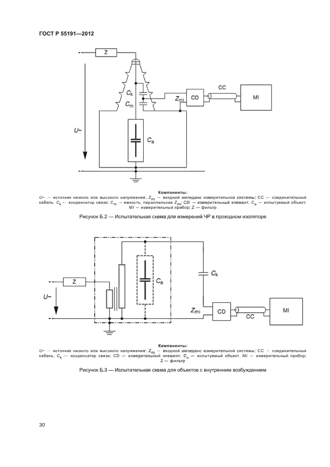
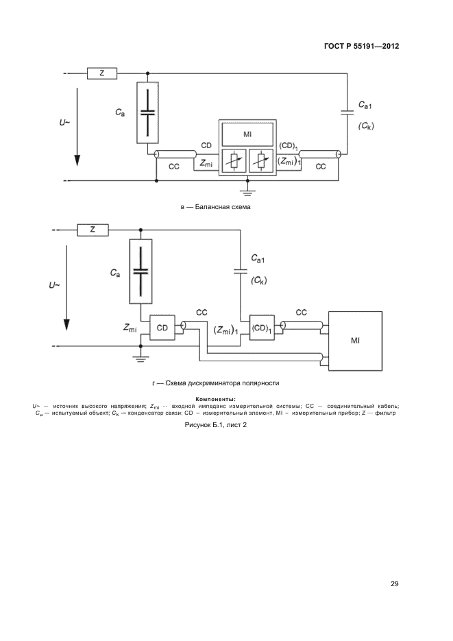
| Область применения: | Настоящий стандарт распространяется на измерение характеристик частичных разрядов при испытании изоляции электрооборудования напряжением переменного тока промышленной частоты до 400 Гц действующим значением свыше 1000 В и напряжением постоянного тока свыше 1000 В |
| Список изменений: | №0 от 31.05.2015 (рег. 31.05.2015) «Дата введения перенесена» |
| Приложение №1: | Поправка к ГОСТ Р 55191-2012 |
|
| Расположен в: |
|