| Обозначение: |  ГОСТ Р 53734.4.7-2012 |
| Статус: | отменён |
| Название рус.: | Электростатика. Часть 4.7. Методы испытаний для прикладных задач. Ионизация |
| Дата актуализации текста: | 01.01.2021 |
| Дата актуализации описания: | 01.06.2021 |
| Дата издания: | 07.07.2014 |
| Дата введения: | 01.11.2013 |
| Дата окончания срока действия: | 01.02.2021 |
| Содержит требования: | IEC 61340-4-7(2010) |
| На территории РФ пользоваться: | ГОСТ IEC 61340-4-7-2020 |
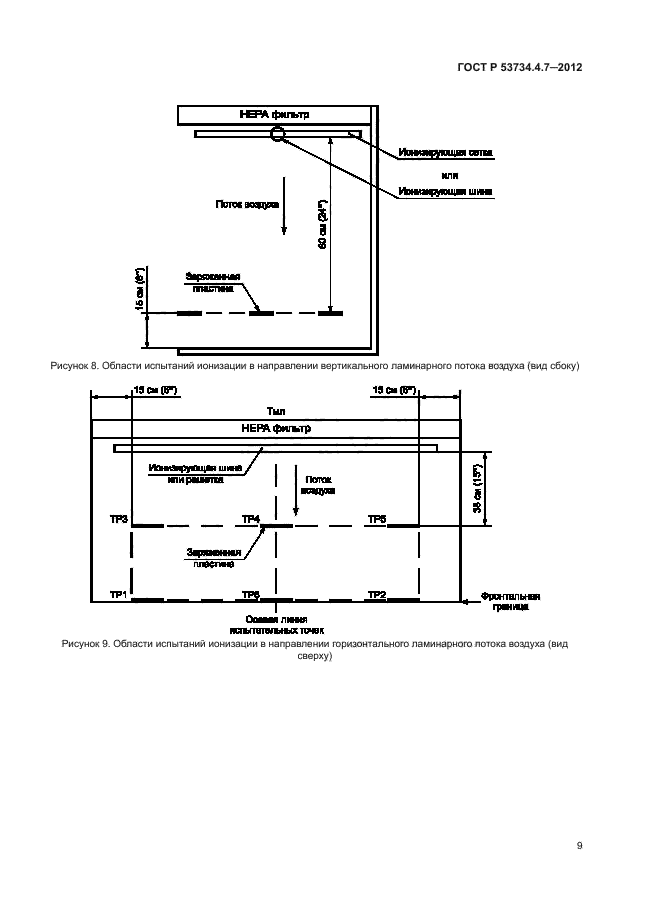
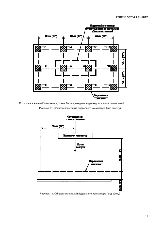
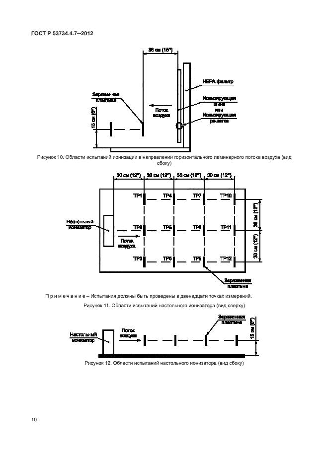
| Область применения: | Настоящий стандарт описывает методы и процедуры испытаний для оценки и выбора оборудования и систем, ионизирующих воздух (ионизаторов). Настоящий стандарт устанавливает методику измерений напряжения смещения (зависящего от соотношения ионов) и времени разряда (зависящего от эффективности нейтрализации заряда) при определенных условиях применения ионизаторов. В настоящем стандарте не рассмотрены вопросы электромагнитной совместимости, а также вопросы использования ионизаторов в специальных случаях, например во взрывопожароопасных средах или устройствах. Представленные в настоящем стандарте методы и условия испытаний могут быть использованы изготовителями для описания технических и эксплуатационных характеристик ионизаторов. Для определения возможности применения ионизаторов для конкретной цели пользователям при необходимости следует внести изменения в представленные в настоящем стандарте методы и условия испытаний, а также определить требуемый объем испытаний |
|
| Расположен в: |
|