| Обозначение: |  ГОСТ Р ИСО 17642-2-2012 |
| Статус: | действующий |
| Название рус.: | Испытания разрушающие сварных швов металлических материалов. Испытания на сопротивляемость образованию холодных трещин в сварных соединениях. Процессы дуговой сварки. Часть 2. Испытания с естественной жесткостью |
| Дата актуализации текста: | 06.04.2015 |
| Дата актуализации описания: | 01.07.2023 |
| Дата издания: | 29.05.2020 |
| Дата введения: | 01.01.2014 |
| Аутентичен стандартам: | ISO 17642-2:2005 |
| Нормативные ссылки: | EN 1043-1:1995;EN 1321;EN ISO 3690;EN ISO 17642-1:2004 |
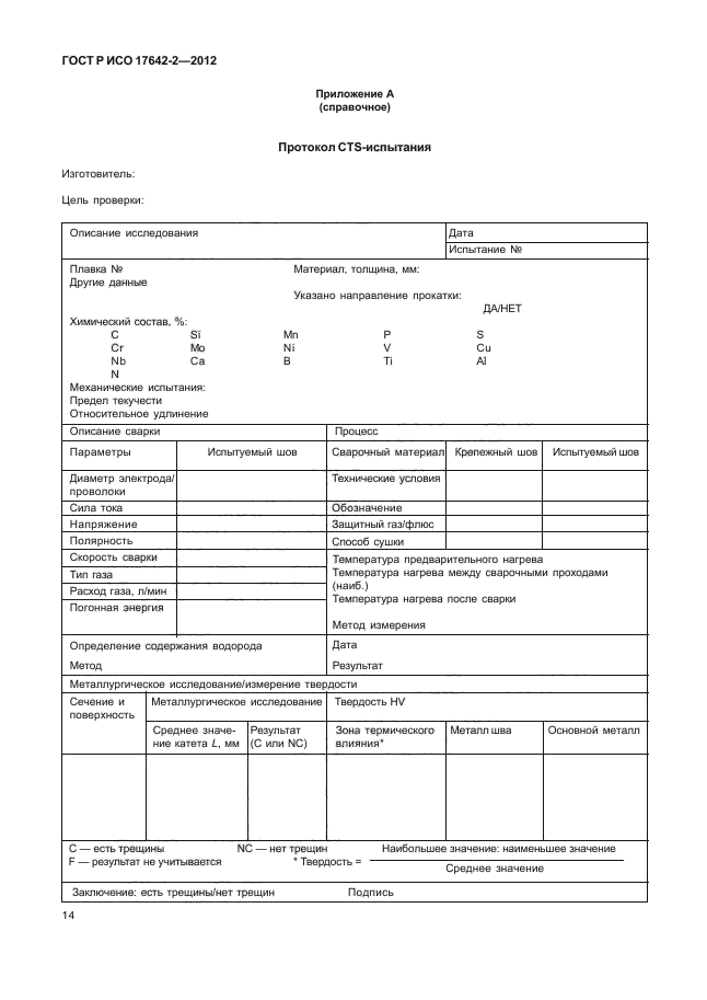
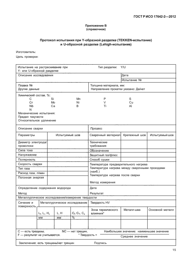
| Область применения: | Настоящий стандарт устанавливает требования к образцам и процедуры, которые следует выполнять при испытании на сопротивляемость образованию холодных трещин в сварных соединениях образцов с естественной жесткостью путем: - CTS-испытания (при управляемой термической жесткости); - Tekken-испытания (при Y-образной разделке) или Lehigh-испытания (при U-образной разделке); Испытания проводят для получения информации о сопротивляемости образованию холодных трещин при сварке. Настоящий стандарт применяется преимущественно, но не исключительно, для марганцовистых и низколегированных сталей |
|
| Расположен в: |
|