Информационная система
«Ёшкин Кот»

Скачать базу одним архивом
Скачать обновления
История создания базы
Карта сайта

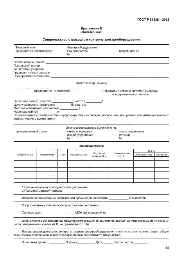
Скачать ГОСТ Р 51838-2012 Безопасность машин. Электрооборудование производственных машин. Методы испытаний

Дата актуализации: 01.06.2025

ГОСТ Р 51838-2012

Безопасность машин. Электрооборудование производственных машин. Методы испытаний

Обозначение: ГОСТ Р 51838-2012
Статус:действующий
Название рус.:Безопасность машин. Электрооборудование производственных машин. Методы испытаний
Дата актуализации текста:06.04.2015
Дата актуализации описания:01.07.2023
Дата издания:24.01.2014
Дата введения:01.03.2013
Взамен:ГОСТ Р 51838-2001
Нормативные ссылки:ГОСТ Р 8.568-97;ГОСТ Р 8.614-2005;ГОСТ Р 8.678-2009;ГОСТ Р 12.1.019-2009;ГОСТ Р 50571.2-94;ГОСТ Р 50571.6-94;ГОСТ Р 50571.16-2007;ГОСТ Р 51317.6.1-2006;ГОСТ Р 51317.6.2-2007;ГОСТ Р 51317.6.3-2009;ГОСТ Р 51317.6.4-2009;ГОСТ Р 51318.16.2.3-2009;ГОСТ Р 51318.16.2.4-2010;ГОСТ Р 51320-99;ГОСТ Р 51321.1-2007;ГОСТ Р 51344-99;ГОСТ Р 54149-2010;ГОСТ Р ИСО 12100-1-2007;ГОСТ Р ИСО 12100-2-2007;ГОСТ Р ИСО 13849-1-2003;ГОСТ Р МЭК 60204-1-2007;ГОСТ Р МЭК 60695-10-2-2010;ГОСТ Р МЭК 61508-2007;ГОСТ Р МЭК 61508-3-2007;ГОСТ Р МЭК 61557-3-2006;ГОСТ 8.051-81;ГОСТ 8.311-78;ГОСТ 12.1.004-91;ГОСТ 12.1.005-88;ГОСТ 12.1.018-93;ГОСТ 12.2.009-99;ГОСТ 12.2.049-80;ГОСТ 12.3.019-80;ГОСТ 20.57.406-81;ГОСТ 4997-75;ГОСТ 7165-93;ГОСТ 8711-93;ГОСТ 8865-93;ГОСТ 10374-93;ГОСТ 13385-78;ГОСТ 14254-96;ГОСТ 15150-69;ГОСТ 18620-86;ГОСТ 20010-93;ГОСТ 21130-75;ГОСТ 21339-82;ГОСТ 23088-80;ГОСТ 23216-78;ГОСТ 23706-93;ГОСТ 26642-85;ГОСТ 27924-88;ГОСТ ЕН 1837-2002
Область применения:Настоящий стандарт устанавливает методы испытаний и методы оценки электрооборудования производственных машин, на соответствие их требованиям безопасности
Расположен в:Государственные стандарты Общероссийский классификатор стандартов Электротехника Электротехника в целом Классификатор государственных стандартов Машины, оборудование и инструмент Общие правила и нормы по машиностроению Нормы расчета и проектирования
ГОСТ Р 51838-2012ГОСТ Р 51838-2012ГОСТ Р 51838-2012ГОСТ Р 51838-2012ГОСТ Р 51838-2012ГОСТ Р 51838-2012ГОСТ Р 51838-2012ГОСТ Р 51838-2012ГОСТ Р 51838-2012ГОСТ Р 51838-2012ГОСТ Р 51838-2012ГОСТ Р 51838-2012ГОСТ Р 51838-2012ГОСТ Р 51838-2012ГОСТ Р 51838-2012ГОСТ Р 51838-2012ГОСТ Р 51838-2012ГОСТ Р 51838-2012ГОСТ Р 51838-2012ГОСТ Р 51838-2012ГОСТ Р 51838-2012ГОСТ Р 51838-2012ГОСТ Р 51838-2012ГОСТ Р 51838-2012ГОСТ Р 51838-2012ГОСТ Р 51838-2012ГОСТ Р 51838-2012ГОСТ Р 51838-2012ГОСТ Р 51838-2012ГОСТ Р 51838-2012ГОСТ Р 51838-2012ГОСТ Р 51838-2012ГОСТ Р 51838-2012ГОСТ Р 51838-2012ГОСТ Р 51838-2012ГОСТ Р 51838-2012

© 2013 Ёшкин Кот :-) Карта сайта