| Обозначение: |  ГОСТ Р 55421-2013 |
| Статус: | заменён |
| Название рус.: | Дороги автомобильные общего пользования. Эмульсии битумные дорожные катионные. Метод определения условной вязкости |
| Дата актуализации текста: | 01.01.2021 |
| Дата актуализации описания: | 01.07.2023 |
| Дата издания: | 27.09.2019 |
| Дата введения: | 01.09.2013 |
| Дата окончания срока действия: | 01.12.2020 |
| Код ОКП: | 577515 |
| Заменяющий: | ГОСТ Р 58952.6-2020 |
| Нормативные ссылки: | ГОСТ Р 55420-2013; ГОСТ 12.1.004; ГОСТ 12.1.007; ГОСТ 12.1.044; ГОСТ 12.4.011; ГОСТ 12.4.103; ГОСТ 12.4.131; ГОСТ 12.4.132; ГОСТ 12.4.252; ГОСТ 1770; ГОСТ 6613 |
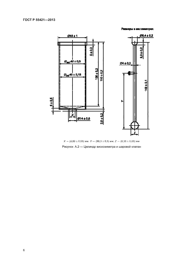
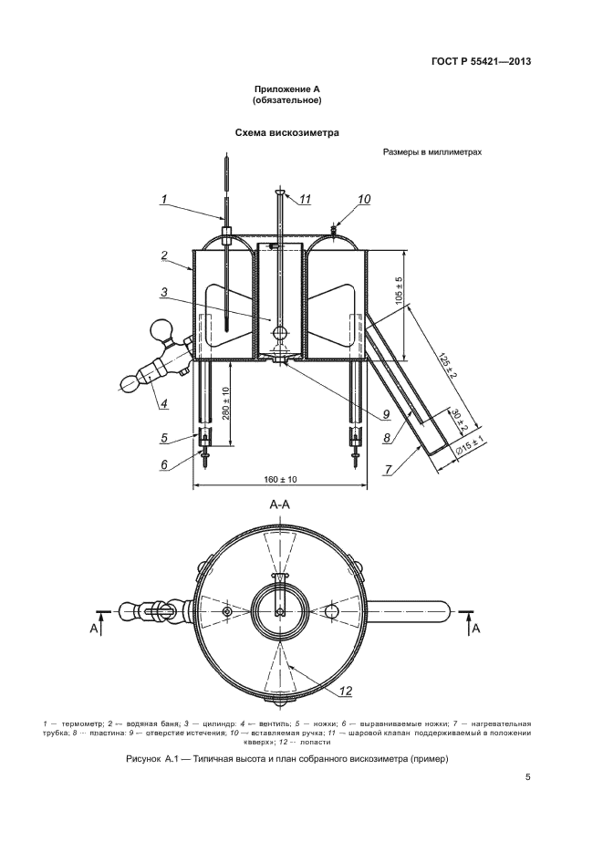
| Область применения: | Настоящий стандарт распространяется на эмульсии битумные дорожные катионные (далее - эмульсии), применяемые для дорожного строительства. Настоящий стандарт устанавливает метод определения условной вязкости битумной эмульсии |
|
| Расположен в: |
|