| Обозначение: |  ГОСТ Р 55148-2012 |
| Статус: | действующий |
| Название рус.: | Средства надежного хранения. Шкафы сейфовые. Требования, классификация и методы испытаний на устойчивость к взлому |
| Дата актуализации текста: | 01.06.2019 |
| Дата актуализации описания: | 01.07.2023 |
| Дата издания: | 02.04.2019 |
| Дата введения: | 01.01.2014 |
| Код ОКП: | 525672;529717;718970;969311 |
| Содержит требования: | EN 14450:2005 |
| Нормативные ссылки: | ГОСТ ИСО/МЭК 17025; ГОСТ Р 50862; ГОСТ 34024; ГОСТ Р 57384 |
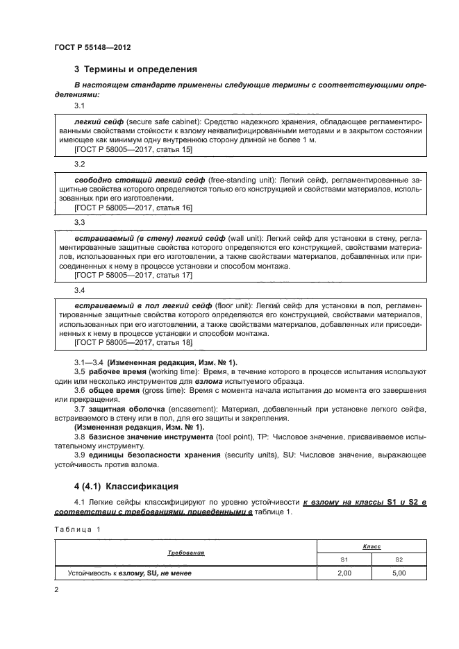
| Область применения: | Настоящий стандарт устанавливает технические требования, классификацию и методы испытаний сейфовых шкафов на устойчивость к взлому. Стандарт не распространяется на изделия по ГОСТ Р 50862 в части устойчивости к взлому |
| Список изменений: | №1 от 31.05.2019 (рег. 28.12.2018) «» |
| Приложение №1: | Изменение №1 к ГОСТ Р 55148-2012 |
|
| Расположен в: |
|