| Обозначение: |  ГОСТ Р ИСО 10542-3-2011 |
| Статус: | заменён |
| Название рус.: | Системы и устройства технические для инвалидов или людей с ограничениями жизнедеятельности. Устройства крепления кресел-колясок и системы удержания пользователей. Часть 3. Системы крепления стыковочного типа |
| Название англ.: | Technical systems and aids for disabled or handicapped persons. Wheelchair tiedown and occupant-restraint systems. Part 3. Docking-type tiedown systems |
| Дата актуализации текста: | 06.04.2015 |
| Дата актуализации описания: | 01.01.2021 |
| Дата издания: | 13.03.2013 |
| Дата введения: | 01.01.2013 |
| Дата окончания срока действия: | 01.01.2017 |
| Код ОКП: | 945150 |
| Заменяющий: | ГОСТ Р ИСО 10542-1-2015 |
| Аутентичен стандартам: | ISO 10542-3:2005 |
| Нормативные ссылки: | ISO 10542-1:2001 |
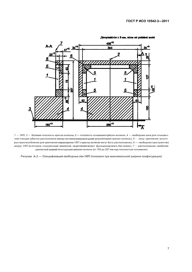
| Область применения: | Настоящий стандарт устанавливает требования и рекомендации к конструкции, технические требования и рекомендации, требования к инструкциям и предупреждениям для монтажников и пользователей, а также к наносимым надписям и маркировке креплений кресел-колясок и систем удержания пользователей (ККСУП), использующих крепление кресел-колясок стыковочного типа. Настоящий стандарт устанавливает универсальную конфигурацию подсоединения (УКП) и метод испытания кресел-колясок на перемещение. Настоящий стандарт применим к устройствам крепления кресел-колясок стыковочного типа, предназначенным для закрепления расположенных по направлению движения транспортных средств кресел-колясок всех типов с ручным приводом и электроприводом, включая скутеры с тремя или более колесами, используемых взрослыми пассажирами и водителями транспортных средств |
|
| Расположен в: |
|