| Обозначение: |  ГОСТ Р ИСО 13680-2011 |
| Статус: | отменён |
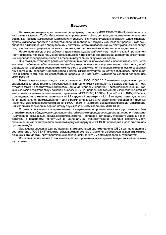
| Название рус.: | Трубы бесшовные обсадные, насосно-компрессорные и трубные заготовки для муфт из коррозионно-стойких высоколегированных сталей и сплавов для нефтяной и газовой промышленности. Технические условия |
| Название англ.: | Seamless casing, tubing and coupling stock from corrosion-resistant high-alloy steels and alloys for petroleum and natural gas industries. Specifications |
| Дата актуализации текста: | 06.04.2015 |
| Дата актуализации описания: | 01.07.2023 |
| Дата издания: | 15.08.2013 |
| Дата введения: | 01.01.2013 |
| Дата окончания срока действия: | 01.10.2017 |
| Код ОКП: | 132780;132100 |
| Аутентичен стандартам: | ISO 13680:2010 |
| На территории РФ пользоваться: | ГОСТ ISO 13680-2016 |
| Нормативные ссылки: | ISO 377;ISO 404;ISO 525;ISO 783;ISO 4885;ISO 4948-1;ISO 4948-2;ISO 6508-1;ISO 6892-1;ISO 6929;ISO 8501-1:2007;ISO 9303;ISO 9304;ISO 9305;ISO 9402;ISO 9598;ISO 10124;ISO 10474;ISO 10543;ISO 10893-2:2011;ISO 10893-3:2009;ISO 10893-4:2011;ISO 10893-5:2011;ISO 10893-8:2011;ISO 10893-10:2011;ISO 11484;ISO 11496;ISO 12095;ISO 13665;ISO 14284;ISO 15156-3:2003;ISO 80000-1;ASNT SNT-ТС-1A;ASTM А 370;ASTM А 604/А 604М;ASTM А 941;ASTM Е 18;ASTM Е 21;ASTM Е 23;ASTM Е 29;ASTM Е 45-05е3;ASTM Е 65;ASTM Е 213;ASTM Е 309;ASTM Е 340;ASTM Е 381;ASTM Е562;ASTM Е 570;ASTM Е709;NACE MR 0175/ISO 15156-3 |
| Область применения: | Настоящий стандарт распространяется на бесшовные обсадные, насосно -компрессорные трубы и трубные заготовки для муфт из коррозионно-стойких высоколегированных сталей и сплавов, поставляемые по двум уровням требований к изделиям: - PSL-1 - уровню, устанавливающему основные требования настоящего стандарта к изделиям; - PSL-2 - уровню, устанавливающему помимо основных дополнительные требования к коррозионной стойкости и стойкости изделий к растрескиванию под действием окружающей среды и аттестации изделий в соответствии с ИСО 15156-3 |
| Список изменений: | №0 от 30.09.2017 (рег. 20.03.2017) «Текстовое изменение; Изменено заглавие» |
|
| Расположен в: |
|