| Обозначение: |  ГОСТ IEC 60269-4-1-2011 |
| Статус: | действующий |
| Название рус.: | Предохранители плавкие низковольтные. Часть 4-1. Дополнительные требования к плавким вставкам для защиты полупроводниковых устройств. Разделы I-III. Примеры типов стандартизованных плавких вставок |
| Название англ.: | Low-voltage fuses. Part 4-1. Supplementary requirements for fuse-links for the protection of semiconductor devices. Sections I to III. Examples of types of standardized fuse-links |
| Дата актуализации текста: | 01.01.2021 |
| Дата актуализации описания: | 01.01.2021 |
| Дата регистрации: | 29.11.2011 |
| Дата издания: | 21.07.2014 |
| Дата введения: | 01.01.2013 |
| Аутентичен стандартам: | IEC 60269-4-1-(2002) |
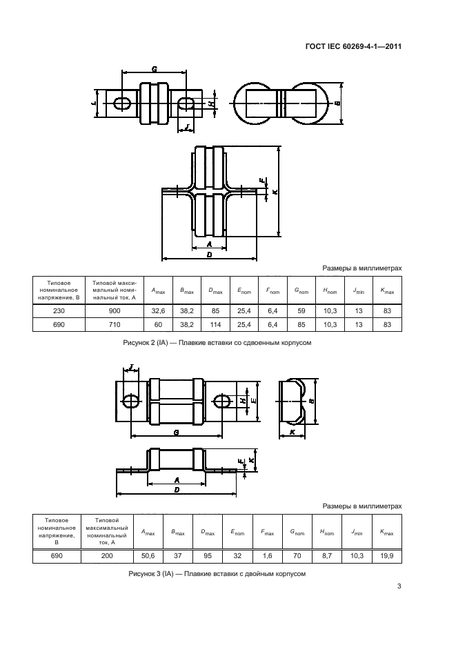
| Область применения: | Настоящий стандарт распространяется на размеры, но не на характеристики плавких вставок. Плавкие вставки должны соответствовать требованиям IEC 60269-4 и, кроме того, значения потерь мощности плавкой вставки не должны превышать значений рассеиваемой мощности оснований или держателей плавких предохранителей. Если значения потери мощности плавкой вставки превышают значения рассеиваемой мощности стандартного основания или держателя плавкого предохранителя, то изготовитель должен привести сниженные значения номинальных характеристик. К плавким вставкам с болтовыми соединениями применяют следующие дополнительные требования. Значения номинальных напряжений и токи должны быть равны: - переменное напряжение - от 230 В и ток до 900 А включительно; - переменное напряжение - от 690 В и ток до 710 А включительно |
|
| Расположен в: |
|