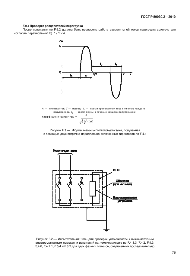
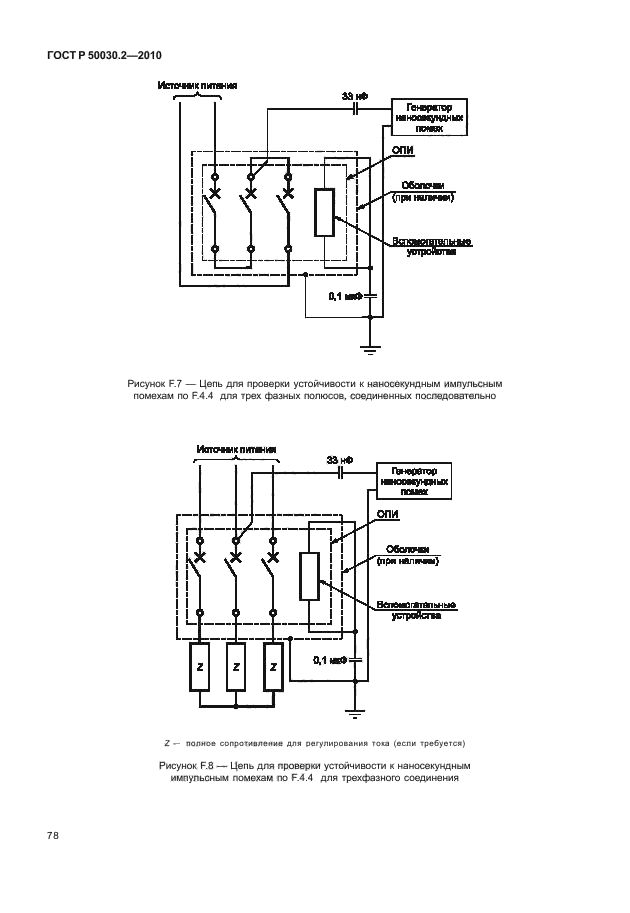
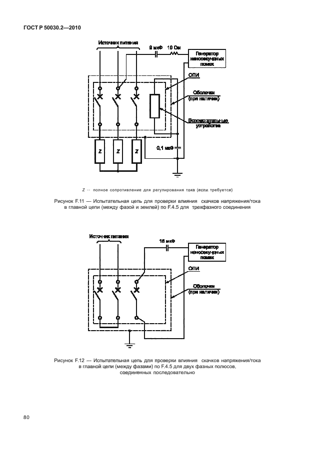
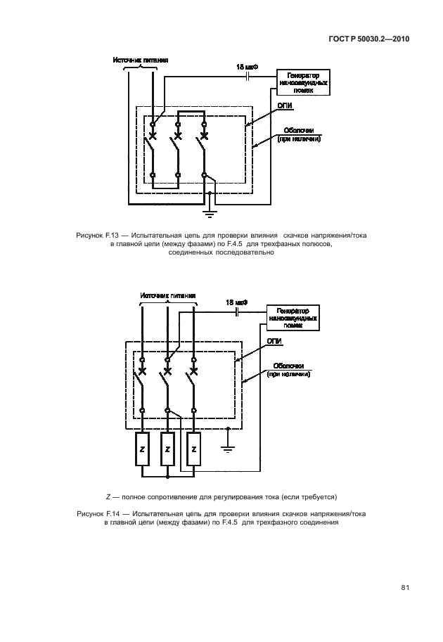
| ||||||||||||||||||||||||||||||||
 Скачать ГОСТ Р 50030.2-2010 Аппаратура распределения и управления низковольтная. Часть 2. Автоматические выключателиДата актуализации: 01.06.2025
 | ||||||||||||||||||||||||||||||||
| Обозначение: | ![]()   ГОСТ Р 50030.2-2010 | 
| Статус: | действующий | 
| Название рус.: | Аппаратура распределения и управления низковольтная. Часть 2. Автоматические выключатели | 
| Название англ.: | Low-voltage switchgear and controlgear. Part 2. Circuit-breakers | 
| Дата актуализации текста: | 06.04.2015 | 
| Дата актуализации описания: | 01.07.2023 | 
| Дата издания: | 13.03.2012 | 
| Дата введения: | 01.01.2012 | 
| Взамен: |  ГОСТ Р 50030.2-99 | 
| Содержит требования: | IEC 60947-2(2006) | 
| Нормативные ссылки: |  ГОСТ Р 50030.1-2007; ГОСТ Р 50030.3-99; ГОСТ Р 50030.4.1-2002; ГОСТ Р 50030.5.1-2005; ГОСТ Р 50031-99; ГОСТ Р 50339.0-2003; ГОСТ Р 50339.2-92; ГОСТ Р 50345-2010;  ГОСТ Р 50807-95; ГОСТ Р 51317.3.2-2006; ГОСТ Р 51317.3.3-2008; ГОСТ Р 51317.4.2-99; ГОСТ Р 51317.4.3-99; ГОСТ Р 51317.4.4-2007; ГОСТ Р 51317.4.5-99; ГОСТ Р 51317.4.6-99; ГОСТ Р 51317.4.11-2007; ГОСТ Р 51317.4.13-2006; ГОСТ Р 51318.11-99; ГОСТ Р 51318.22-99; ГОСТ Р 51321.1-2007; ГОСТ Р 51326.1-99; ГОСТ Р 51327.1-2010; ГОСТ Р 52161.1-2004; ГОСТ 9.005-72; ГОСТ 17441-78; ГОСТ 27473-87; ГОСТ 28216-89; ГОСТ 28779-90; ГОСТ 30012.1-2002 | 
| Область применения: | Настоящий стандарт распространяется на автоматические выключатели, главные контакты которых предназначены для коммутации цепей напряжением до 1000 В переменного или 1500 В постоянного тока, а также содержит дополнительные требования для выключателей со встроенными плавкими предохранителями. Стандарт применяют для выключателей с любыми номинальными токами, различных конструкций и способов применения. Настоящий стандарт устанавливает: a) характеристики выключателей; b) условия, которым должны удовлетворять выключатели, применительно к: 1) работоспособности и поведению в нормальном режиме эксплуатации; 2) работоспособности и поведению при перегрузках, коротких замыканиях, в том числе к координации при эксплуатации (селективности и резервной защите); 3) электроизоляционным свойствам; c) испытания, направленные на проверку выполнения этих условий, и методику проведения таких испытаний; d) информацию, которая должна быть маркирована на аппаратах или поставляться вместе с ними | 
| Расположен в: | |





























































































































































