| Обозначение: |  ГОСТ Р 54071-2010 |
| Статус: | действующий |
| Название рус.: | Весы неавтоматического действия. Часть 2. Формы протоколов испытаний |
| Название англ.: | Non-automatic weighing instruments. Part 2. Test report format |
| Дата актуализации текста: | 06.04.2015 |
| Дата актуализации описания: | 01.01.2021 |
| Дата издания: | 31.10.2011 |
| Дата введения: | 01.01.2012 |
| Аутентичен стандартам: | OIML R 76-2:2007 |
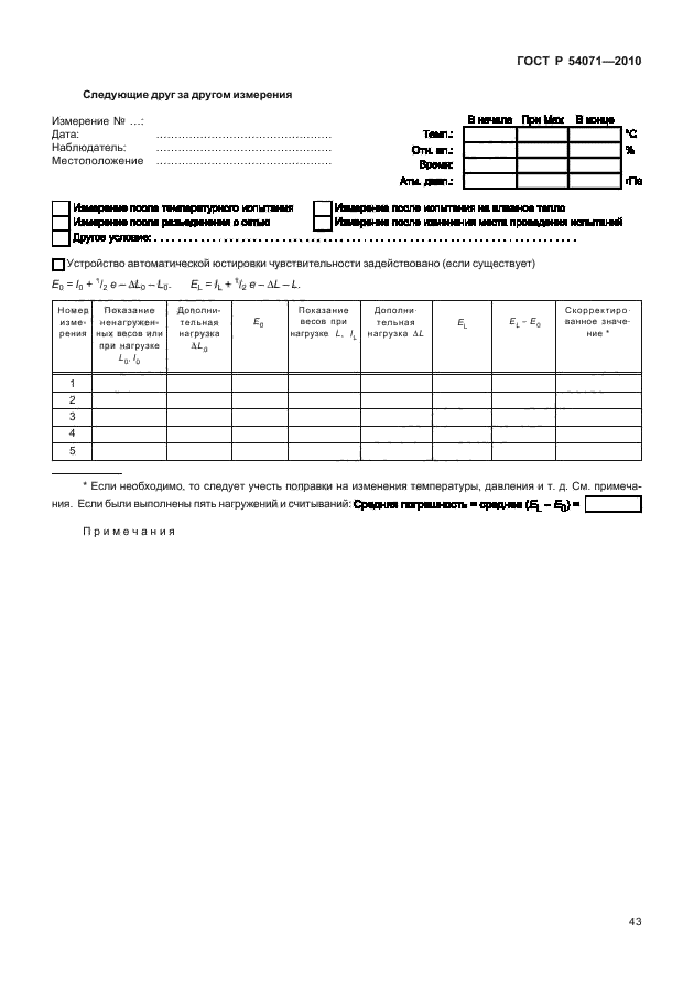
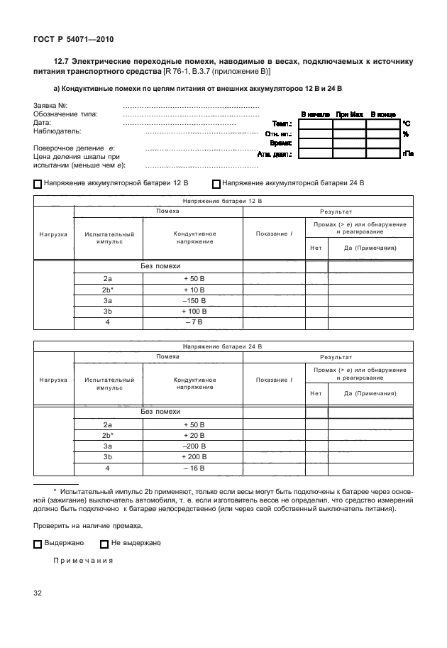
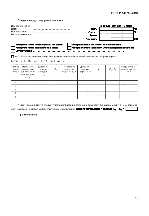
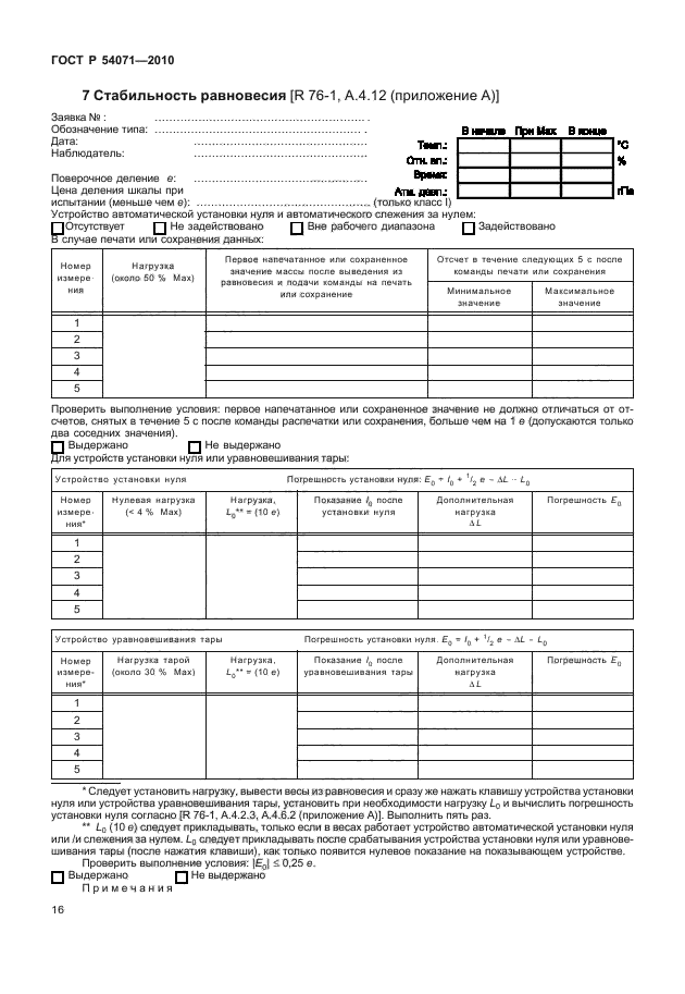
| Область применения: | Настоящий стандарт распространяется на весы неавтоматического действия по МОЗМ МР 76-1:2006 «Весы неавтоматического действия. Часть 1. Метрологические и технические требования. Испытания» (OIML R 76-1: 2006 (E) «Non-automatic weighing instruments. Part 1: Metrological and technical requirements - Tests») (далее - R 76 -1) и устанавливает формы протоколов испытаний весов для целей утверждения типа. Символы, применяемые в настоящем стандарте соответствуют R 76-1 |
| Список изменений: | №0 от 01.06.2011 (рег. 01.06.2011) «» |
|
| Расположен в: |
|