| Обозначение: |  ГОСТ Р 52748-2007 |
| Статус: | отменён |
| Название рус.: | Дороги автомобильные общего пользования. Нормативные нагрузки, расчетные схемы нагружения и габариты приближения |
| Название англ.: | Automobile roads of the general useg. Standard loads, loading systems and clearance approaches |
| Дата актуализации текста: | 06.04.2015 |
| Дата актуализации описания: | 01.01.2023 |
| Дата издания: | 18.01.2008 |
| Дата введения: | 01.01.2008 |
| Дата окончания срока действия: | 22.12.2022 |
| Код ОКП: | 480000 |
| Нормативные ссылки: | ГОСТ Р 52398-2005 |
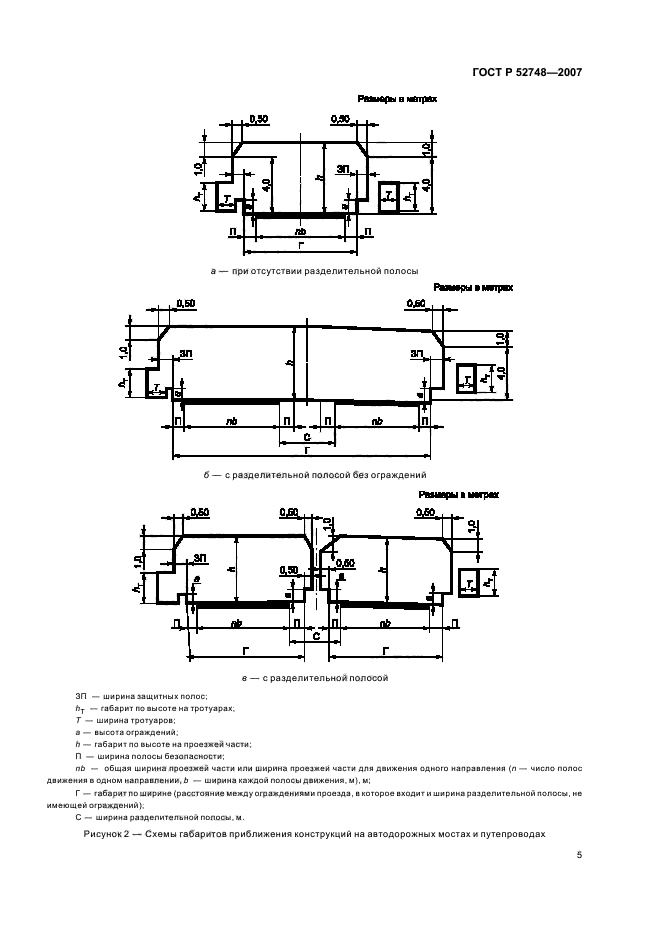
| Область применения: | Настоящий стандарт распространяется на проектирование строительства, реконструкции автомобильных дорог общего пользования и устанавливает для этих дорог нормативные нагрузки, расчетные схемы нагружения и габариты приближений. Настоящий стандарт не распространяется на проектирование временных автомобильных дорог различного назначения (сооружаемые на срок службы менее 5 лет) и автозимников. Требования стандарта не являются основанием для проектирования автотранспортных средств |
| Список изменений: | №0 от 26.03.2008 (рег. 26.03.2008) «Дата введения перенесена» №0 от 30.06.2008 (рег. 30.06.2008) «Дата введения перенесена» |
| Приложение №1: | Поправка к ГОСТ Р 52748-2007 |
| Приложение №2: | Поправка к ГОСТ Р 52748-2007 |
|
| Расположен в: |
|