| Обозначение: |  ГОСТ Р 53674-2009 |
| Статус: | отменён |
| Название рус.: | Арматура трубопроводная. Номенклатура показателей. Опросные листы для проектирования и заказа |
| Название англ.: | Pipeline valves. Nomenclature of characteristics. Check-lists for design and order |
| Дата актуализации текста: | 06.04.2015 |
| Дата актуализации описания: | 01.07.2023 |
| Дата издания: | 25.11.2010 |
| Дата введения: | 01.01.2011 |
| Дата окончания срока действия: | 01.08.2020 |
| На территории РФ пользоваться: | ГОСТ 4.114-2019 |
| Нормативные ссылки: | ГОСТ Р 51330.0-99; ГОСТ Р 52720-2007; ГОСТ Р 52776-2007; ГОСТ 27.002-89; ГОСТ 9544-2005; ГОСТ 12815-80; ГОСТ 15150-69; ГОСТ 23866-87; ГОСТ 25923-89 |
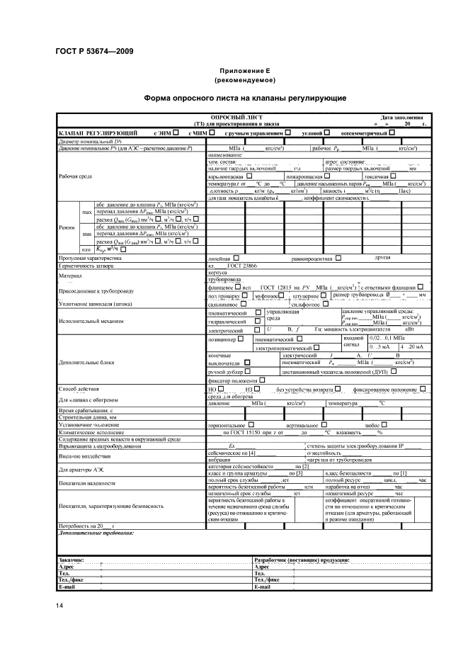
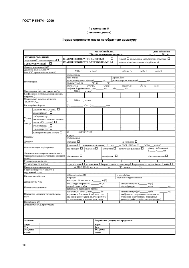
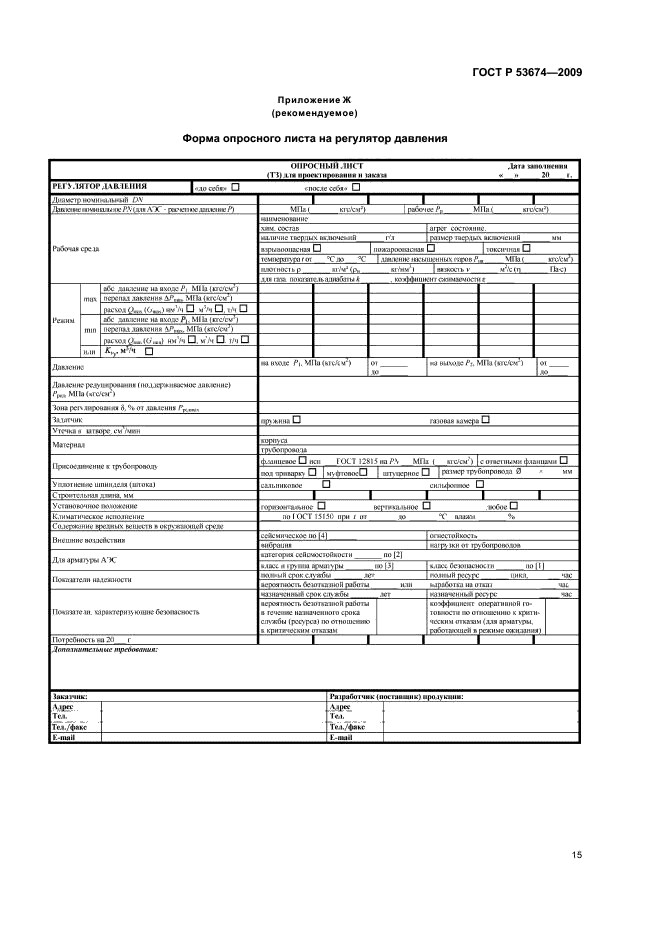
| Область применения: | Настоящий стандарт распространяется на трубопроводную арматуру и приводы к ней и устанавливает номенклатуру основных показателей и формы опросных листов для проектирования и заказа. Установленная настоящим стандартом номенклатура показателей рекомендуется для включения в конструкторскую и нормативную документацию, в том числе в техническое задание, технические условия, эксплуатационную документацию (паспорт, руководство по эксплуатации), при их разработке или пересмотре |
|
| Расположен в: |
|