| Обозначение: |  ГОСТ Р ЕН 1107-1-2008 |
| Статус: | отменён |
| Название рус.: | Материалы кровельные и гидроизоляционные гибкие битумосодержащие. Метод определения изменения линейных размеров |
| Название англ.: | Roofing, hydraulic-insulating, flexible, bitumen-based materials. Method for determination of linear dimensional change |
| Дата актуализации текста: | 06.04.2015 |
| Дата актуализации описания: | 01.07.2023 |
| Дата издания: | 03.04.2009 |
| Дата введения: | 01.09.2009 |
| Дата окончания срока действия: | 01.07.2013 |
| Аутентичен стандартам: | EN 1107-1:1999 |
| На территории РФ пользоваться: | ГОСТ EN 1107-1-2011 |
| Нормативные ссылки: | ISO 5725-1:1994;ISO 5725-2:1994 |
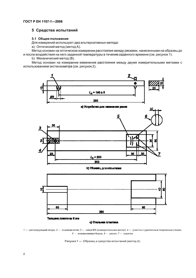
| Область применения: | Настоящий стандарт распространяется на кровельные и гидроизоляционные гибкие битумосодержащие материалы и устанавливает метод определения изменения линейных размеров, вызванного релаксацией внутренних напряжений в материале под воздействием нагрева в процессе производства. Настоящий стандарт предназначен для определения характеристик и/или классификации материалов после их изготовления или поставки до их укладки. Требования настоящего стандарта распространяются только на материалы и не применимы для определения характеристик изготовленных из них гидроизоляционных систем после производства работ. Метод может быть использован для прогнозирования пригодности материалов для целей гидроизоляции в реальных условиях эксплуатации |
| Список изменений: | №0 от 30.06.2013 (рег. 27.12.2012) «Текстовое изменение; Изменено заглавие» |
|
| Расположен в: |
|