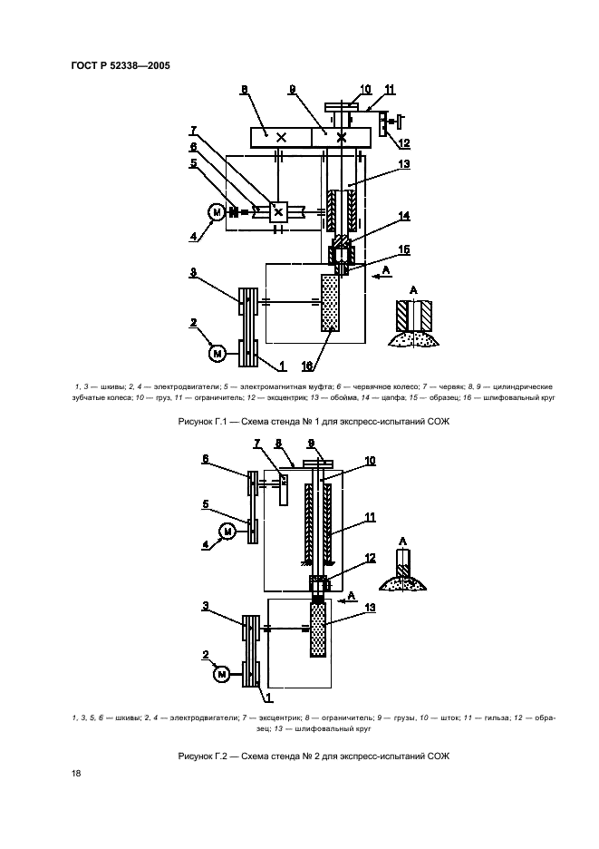
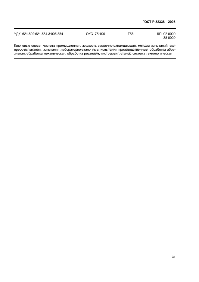
| ||||||||||||||||||||||||||||||
Скачать ГОСТ Р 52338-2005 Чистота промышленная. Методы испытаний смазочно-охлаждающих жидкостейДата актуализации: 01.06.2025
| ||||||||||||||||||||||||||||||
| Обозначение: | ![]() ГОСТ Р 52338-2005 |
| Статус: | действующий |
| Название рус.: | Чистота промышленная. Методы испытаний смазочно-охлаждающих жидкостей |
| Название англ.: | Industrial cleanliness. Methods for lubricating and cooling liquids testing |
| Дата актуализации текста: | 06.04.2015 |
| Дата актуализации описания: | 01.07.2023 |
| Дата издания: | 29.06.2005 |
| Дата введения: | 01.03.2006 |
| Код ОКП: | 020000;380000 |
| Нормативные ссылки: | ГОСТ 8.051-81; ГОСТ 9.085-78; ГОСТ 12.1.005-88; ГОСТ 12.1.007-76; ГОСТ 12.3.025-80; ГОСТ 23.221-84; ГОСТ 33-2000; ГОСТ 801-78; ГОСТ 1050-88; ГОСТ 1412-85; ГОСТ 1583-93; ГОСТ 1604-71; ГОСТ 1628-78; ГОСТ 1672-80; ГОСТ 2034-80; ГОСТ 2424-83; ГОСТ 2517-85; ГОСТ 2789-73; ГОСТ 2917-76; ГОСТ 3060-86; ГОСТ 3647-80; ГОСТ 3882-74; ГОСТ 4333-87; ГОСТ 4543-71; ГОСТ 4784-97; ГОСТ 5632-72; ГОСТ 5950-2000; ГОСТ 6243-75; ГОСТ 9490-75; ГОСТ 10689-75; ГОСТ 10743-64; ГОСТ 11362-96; ГОСТ 14706-78; ГОСТ 16181-82; ГОСТ 16504-81; ГОСТ 17362-71; ГОСТ 18118-79; ГОСТ 19199-73; ГОСТ 19202-80; ГОСТ 19265-73; ГОСТ 19807-91; ГОСТ 21445-84; ГОСТ 24106-80; ГОСТ 25961-83; ГОСТ Р 50558-93; ГОСТ Р 51779-2001 |
| Область применения: | Настоящий стандарт устанавливает методы испытаний смазачно-охлаждающей жидкости (СОЖ): экспресс-испытания, лабораторно-станочные испытания, производственные испытания. Настоящий стандарт распространяется на следующие классы СОЖ: водные, образующие в воде эмульсии (грубые дисперсии, микроэмульсии) или прозрачные растворы на основе органическиз веществ, неорганических веществ, смеси органических и неорганических веществ; масляные, группы кинематической вязкости у, мм кв./с, при 50 град. С: первая - 1-9; вторая - 10-20; третья - >20 |
| Расположен в: | |


































