| Обозначение: |    ГОСТ 7918-75 | 
| Статус: | действующий | 
| Название рус.: | Замки для геологоразведочных бурильных труб диаметром 50 мм. Технические условия | 
| Название англ.: | Tool joints for 50 mm diameter drilling pipes. Specifications | 
| Дата актуализации текста: | 06.04.2015 | 
| Дата актуализации описания: | 01.07.2023 | 
| Дата издания: | 01.08.2006 | 
| Дата введения: | 01.01.1976 | 
| Код ОКП: | 366800 | 
| Взамен: |  ГОСТ 7918-64 | 
| Нормативные ссылки: |  ГОСТ 2.601-95; ГОСТ 9.014-78; ГОСТ 9.302-88; ГОСТ 9.306-85; ГОСТ 1497-84; ГОСТ 1763-68; ГОСТ 2789-73; ГОСТ 4543-71; ГОСТ 9012-59; ГОСТ 9013-59; ГОСТ 9454-78; ГОСТ 29329-92 | 
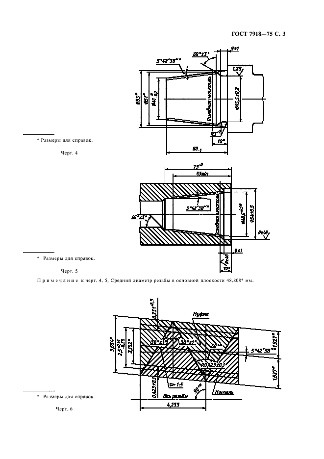
| Область применения: | Настоящий стандарт распространяется на замки, предназначенные для соединения геологоразведочных бурильных труб и на замковую и трубную резьбу, применяемую для соединения бурового инструмента | 
| Список изменений: | №1 от 01.02.1980 (рег. 12.11.1979) «Срок действия продлен» №2 от 01.05.1987 (рег. 11.12.1986) «Срок действия продлен» №3 от 01.01.1989 (рег. 10.07.1988) «Срок действия продлен» | 
 | 
| Расположен в: | 
  |