| Обозначение: |  ГОСТ 5264-80 |
| Статус: | действующий |
| Название рус.: | Ручная дуговая сварка. Соединения сварные. Основные типы, конструктивные элементы и размеры |
| Название англ.: | Manual arc welding. Welding joints. Main types, design elements and dimensions |
| Дата актуализации текста: | 06.04.2015 |
| Дата актуализации описания: | 01.07.2023 |
| Дата издания: | 29.12.2009 |
| Дата введения: | 01.07.1981 |
| Код ОКП: | 060200 |
| Взамен: | ГОСТ 5264-69 |
| Нормативные ссылки: | ГОСТ 16037-80 |
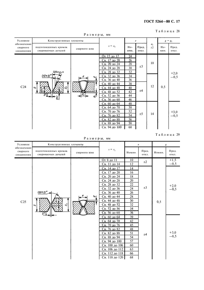
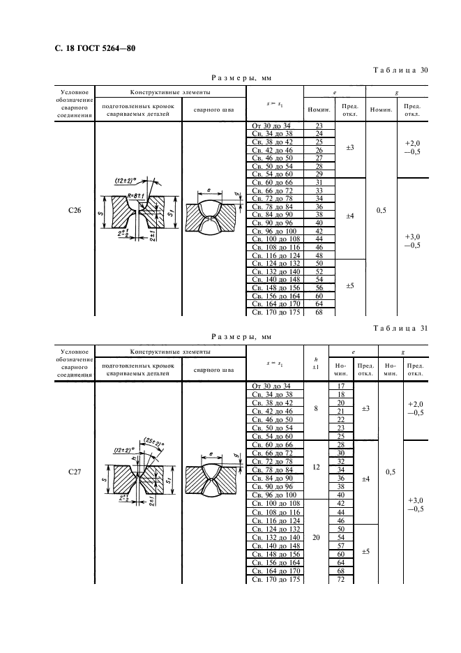
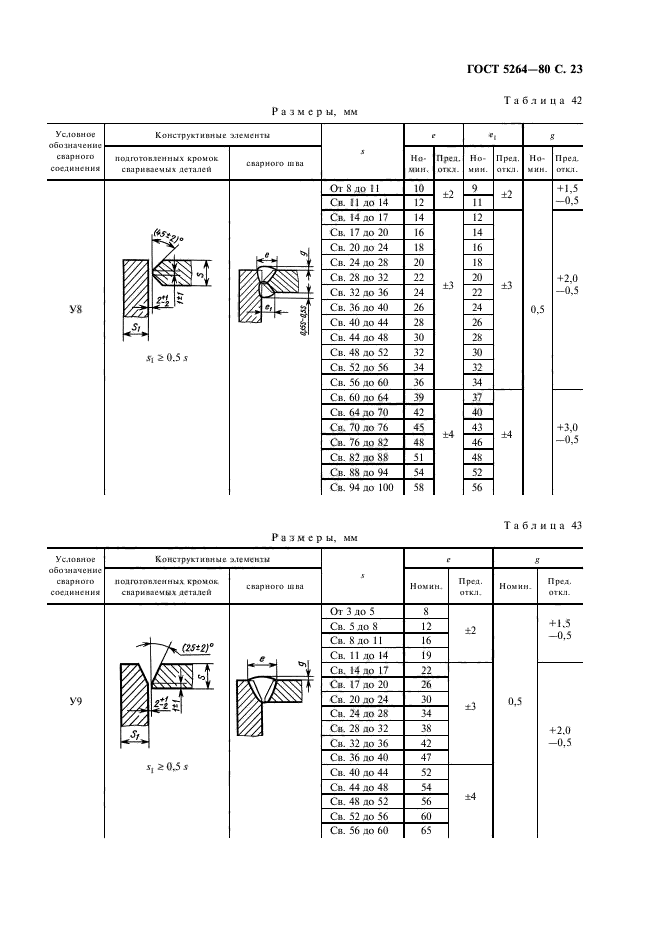
| Область применения: | Настоящий стандарт устанавливает основные типы, конструктивные элементы и размеры сварных соединений из сталей, а также сплавов на железоникелевой и никелевой основах, выполняемых ручной дуговой сваркой. Стандарт не распространяется на сварные соединения стальных трубопроводов по ГОСТ 16037-80 |
| Список изменений: | №0 от 31.08.2009 (рег. 31.08.2009) «Дата введения перенесена» №1 от 01.03.1989 (рег. 03.01.1989) «Срок действия продлен» |
| Приложение №1: | Поправка к ГОСТ 5264-80 |
|
| Расположен в: |
|