| Обозначение: |  ГОСТ Р 51378-99 |
| Статус: | заменён |
| Название рус.: | Оборудование газовое с атмосферными инжекционными горелками для предприятий общественного питания. Требования безопасности и методы испытаний |
| Название англ.: | Gas heated catering equipment with atmospheric burners if injection type. Safety requirements and test methods |
| Дата актуализации текста: | 06.04.2015 |
| Дата актуализации описания: | 01.07.2023 |
| Дата издания: | 09.02.2000 |
| Дата введения: | 01.01.2001 |
| Дата окончания срока действия: | 01.01.2014 |
| Код ОКП: | 515120 |
| Заменяющий: | ГОСТ Р 55211-2012 |
| Аутентичен стандартам: | EN 203-1:1992 |
| Нормативные ссылки: | ISO 7-1:1982;ISO 228-1:1982;ISO 301:1981;ISO/DIS 6976:1992; ГОСТ Р МЭК 335-1-94; ГОСТ Р МЭК 730-2-1-94;EN 298-93 |
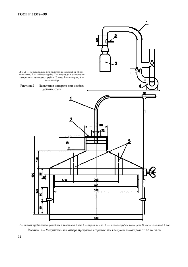
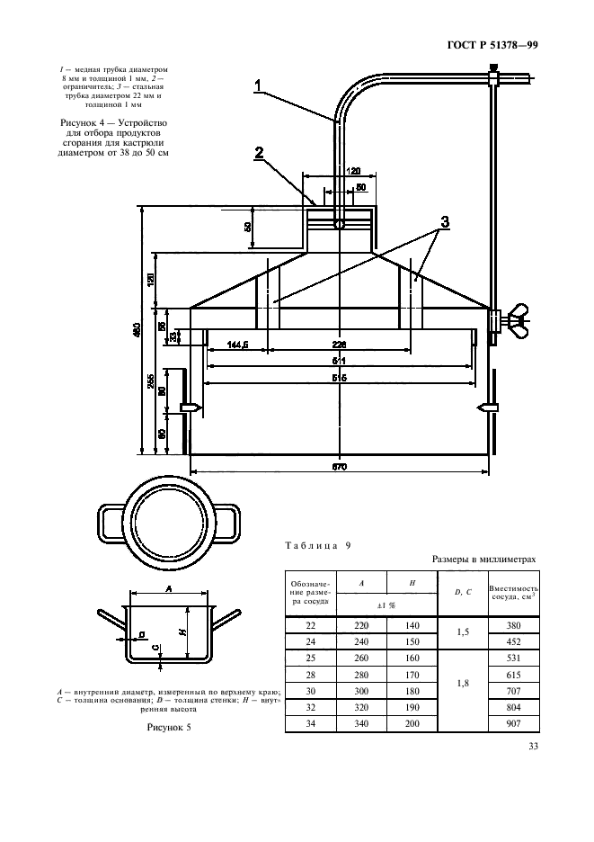
| Область применения: | Настоящий стандарт устанавливает требования безопасности и методы испытаний, предъявляемые к конструкции и рабочим характеристикам газовых нагревательных аппаратов для общественного питания с атмосферными инжекционными горелками. Стандарт распространяется на все газовые нагревательные аппараты для общественного питания, предназначенные для приготовления пищи. Стандарт не распространяется на: - аппараты с горелками полного предварительного смещения; - аппараты типа В2 (без стабилизатора тяги) |
|
| Расположен в: |
|