| Обозначение: |  ГОСТ 6992-68 |
| Статус: | действующий |
| Название рус.: | Единая система защиты от коррозии и старения. Покрытия лакокрасочные. Метод испытаний на стойкость в атмосферных условиях |
| Название англ.: | Lacquers and paints. Method for determination of weather-resistance of coatings |
| Дата актуализации текста: | 06.04.2015 |
| Дата актуализации описания: | 01.07.2023 |
| Дата издания: | 01.10.2003 |
| Дата введения: | 01.07.1968 |
| Взамен: | ГОСТ 6992-60 |
| Содержит требования: | СТ СЭВ 1767-79 |
| Нормативные ссылки: | ГОСТ 9.050-75; ГОСТ 9.407-84; ГОСТ 9.906-83; ГОСТ 8832-76; ГОСТ 16523-70;СТ СЭВ 4201-83 |
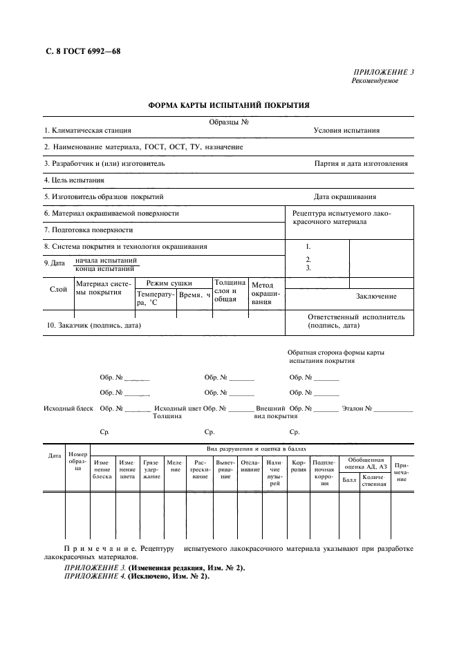
| Область применения: | Настоящий стандарт распространяется на лакокрасочные покрытия на металлической поверхности и устанавливает метод испытаний на стойкость в атмосферных условиях |
| Список изменений: | №0 от 09.06.1987 (рег. 08.06.1987) «Срок действия продлен» №1 от 01.12.1980 (рег. 08.10.1980) «Срок действия продлен» №2 от 01.07.1987 (рег. 28.07.1986) «Срок действия продлен» |
|
| Расположен в: |
|