| Обозначение: |  ГОСТ 8194-75 |
| Статус: | заменён |
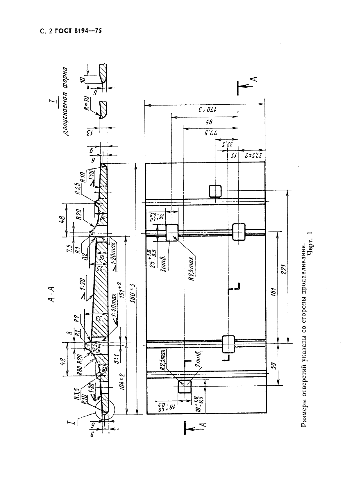
| Название рус.: | Подкладки костыльного скрепления к железнодорожным рельсам типов Р65 и Р75. Конструкция и размеры |
| Название англ.: | Plates of spike fastening for railway Р65 and Р75 rails. Design and dimensions |
| Дата актуализации текста: | 06.04.2015 |
| Дата актуализации описания: | 01.01.2021 |
| Дата издания: | 01.05.1990 |
| Дата введения: | 01.01.1976 |
| Дата окончания срока действия: | 01.03.2015 |
| Код ОКП: | 113000 |
| Взамен: | ГОСТ 8194-66 |
| Заменяющий: | ГОСТ 32694-2014 |
| Нормативные ссылки: | ГОСТ 3280-72 |
| Область применения: | Настоящий стандарт распространяется на подкладки Д65, СД65 и ДН65 костыльного скрепления к железнодорожным рельсам типов Р65 и Р75 |
| Список изменений: | №0 от 08.06.1987 (рег. 07.06.1987) «Срок действия продлен» №1 от 01.11.1976 (рег. 28.09.1970) «Срок действия продлен» №2 от 01.01.1981 (рег. 21.08.1980) «Срок действия продлен» №3 от 01.06.1983 (рег. 31.01.1983) «Срок действия продлен» |
|
| Расположен в: |
|