| Обозначение: |  ГОСТ 12506-81 |
| Статус: | заменён |
| Название рус.: | Окна деревянные для производственных зданий. Типы, конструкция и размеры |
| Название англ.: | Wooden windows for production buildings. Types, structure and dimensions |
| Дата актуализации текста: | 06.04.2015 |
| Дата актуализации описания: | 01.07.2023 |
| Дата издания: | 01.07.2000 |
| Дата введения: | 01.01.1984 |
| Дата окончания срока действия: | 01.02.2023 |
| Код ОКП: | 536135;536138 |
| Взамен: | ГОСТ 12506-67; ГОСТ 16407-70 |
| Заменяющий: | ГОСТ 34914-2022 |
| Нормативные ссылки: | ГОСТ 111-90; ГОСТ 5088-94; ГОСТ 5090-86; ГОСТ 5091-78; ГОСТ 10174-90; ГОСТ 23166-99 |
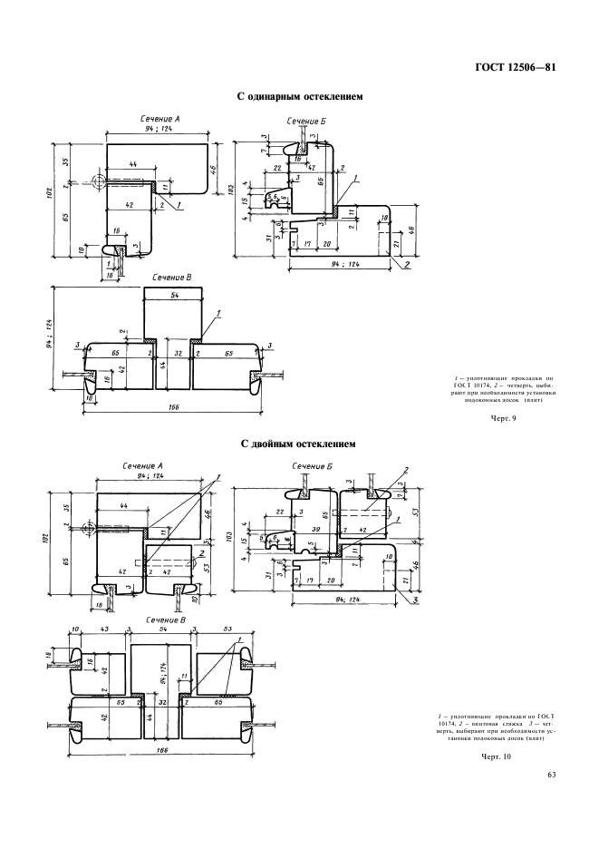
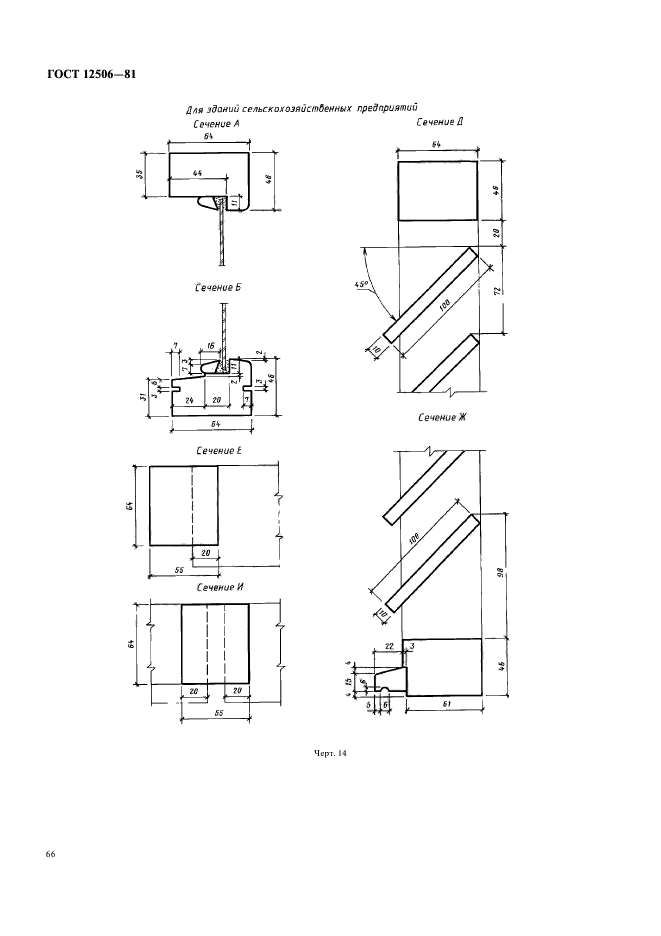
| Область применения: | Настоящий стандарт распространяется на деревянные окна, предназначенные для заполнения проемов в производственных и вспомогательных зданиях промышленных и сельскохозяйственных предприятий |
|
| Расположен в: |
|