| ||||||||||||||||||||||||||||||||||||||||
Скачать ГОСТ 3778-98 Свинец. Технические условияДата актуализации: 01.06.2025
| ||||||||||||||||||||||||||||||||||||||||
| Обозначение: | ![]() ГОСТ 3778-98 |
| Статус: | действующий |
| Название рус.: | Свинец. Технические условия |
| Название англ.: | Lead. Specifications |
| Дата актуализации текста: | 01.06.2024 |
| Дата актуализации описания: | 01.07.2023 |
| Дата регистрации: | 12.11.1998 |
| Дата издания: | 01.08.2003 |
| Дата введения: | 01.07.2001 |
| Код ОКП: | 172532 |
| Взамен: | ГОСТ 3778-77 |
| Нормативные ссылки: | ГОСТ 3.1120-83; ГОСТ 12.3.002-75; ГОСТ 3560-73; ГОСТ 8857-77; ГОСТ 14192-96; ГОСТ 15846-2002; ГОСТ 18477-79; ГОСТ 20580.0-80; ГОСТ 20580.1-80; ГОСТ 20580.2-80; ГОСТ 20580.3-80; ГОСТ 20580.4-80; ГОСТ 20580.5-80; ГОСТ 20580.6-80; ГОСТ 20580.7-80; ГОСТ 20580.8-80; ГОСТ 21399-75; ГОСТ 22477-77; ГОСТ 26653-90; ГОСТ 26880.1-86; ГОСТ 26880.2-86 |
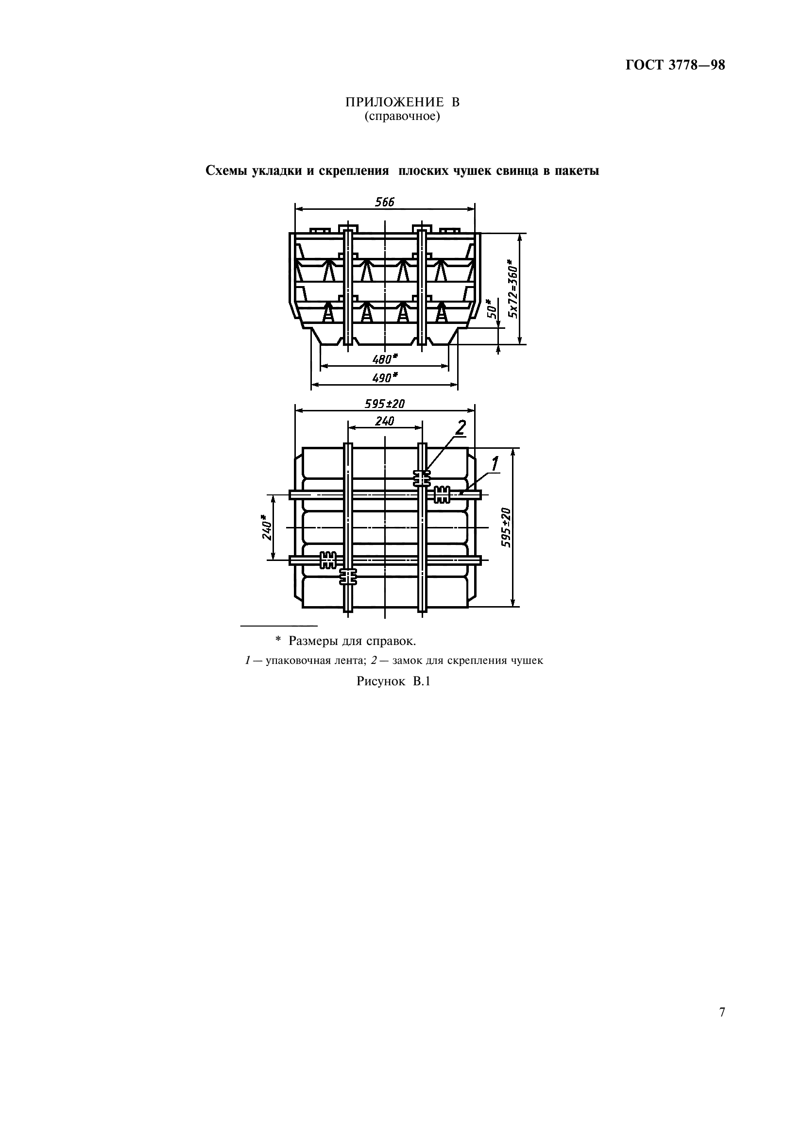
| Область применения: | Настоящий стандарт распространяется на свинец в чушках, блоках и слитках |
| Приложение №1: | Поправка к ГОСТ 3778-98 |
| Расположен в: | |












| Обозначение: | Поправка к ГОСТ 3778-98 |
| Дата введения: | 29.05.2024 |
