| ||||||||||||||||||||||||||||||||||
Скачать ГОСТ 7286-81 Рейсшины деревянные. Технические условияДата актуализации: 01.06.2025
| ||||||||||||||||||||||||||||||||||
| Обозначение: | ![]() ГОСТ 7286-81 |
| Статус: | действующий |
| Название рус.: | Рейсшины деревянные. Технические условия |
| Название англ.: | Wooden T-squares. Specifications |
| Дата актуализации текста: | 06.04.2015 |
| Дата актуализации описания: | 01.07.2023 |
| Дата издания: | 01.10.1998 |
| Дата введения: | 01.07.1982 |
| Код ОКП: | 538920;426515 |
| Взамен: | ГОСТ 7286-68 |
| Нормативные ссылки: | ГОСТ 9.032-74; ГОСТ 15.009-91; ГОСТ 26.008-85; ГОСТ 26.020-80; ГОСТ 166-89; ГОСТ 427-75; ГОСТ 515-77; ГОСТ 896-69; ГОСТ 2695-83; ГОСТ 2991-85; ГОСТ 3749-77; ГОСТ 7016-82; ГОСТ 7286-81; ГОСТ 8026-92; ГОСТ 8273-75; ГОСТ 8828-89; ГОСТ 9038-90; ГОСТ 13837-79; ГОСТ 14192-96; ГОСТ 15150-69; ГОСТ 15612-85; ГОСТ 16588-91; ГОСТ 17308-88;ТУ 2-034-225-87;РД 50-690-89 |
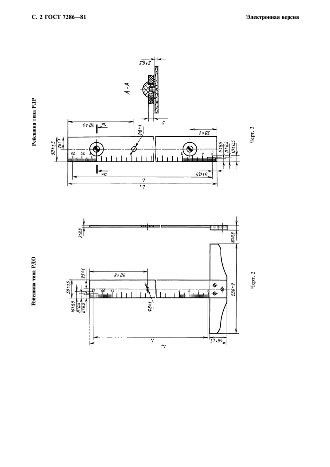
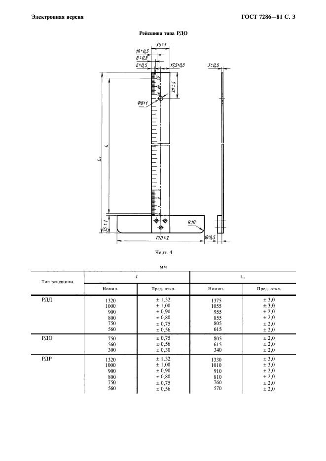
| Область применения: | Настоящий стандарт распространяется на деревянные рейсшины, предназначенные для выполнения чертежно-графических работ |
| Список изменений: | №1 от 01.01.1984 (рег. 30.09.1983) «Срок действия продлен» №2 от 01.07.1987 (рег. 05.03.1987) «Срок действия продлен» |
| Расположен в: | |







