| Обозначение: |  ГОСТ Р 50790-95 |
| Статус: | заменён |
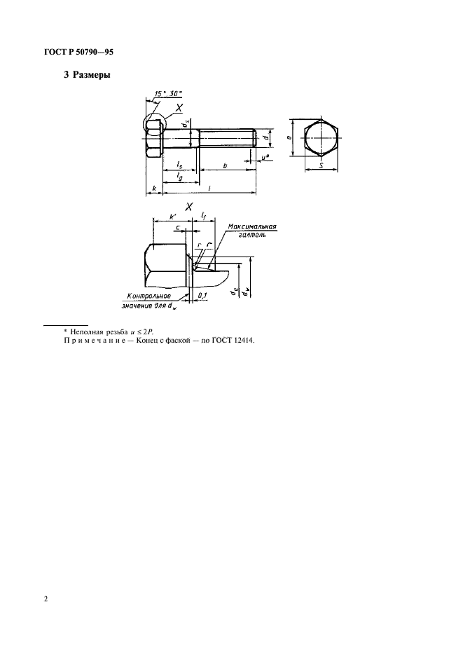
| Название рус.: | Болты с шестигранной головкой с мелким шагом резьбы классов точности А и В. Технические условия |
| Название англ.: | Hexagon head bolts with metric fine pitch thread, product grades A and B. Specifications |
| Дата актуализации текста: | 06.04.2015 |
| Дата актуализации описания: | 01.07.2023 |
| Дата издания: | 01.11.2006 |
| Дата введения: | 01.07.1996 |
| Дата окончания срока действия: | 01.07.2014 |
| Код ОКП: | 128200 |
| Заменяющий: | ГОСТ Р ИСО 8765-2013 |
| Содержит требования: | ISO 8765:1988 |
| Нормативные ссылки: | ГОСТ 1759.0-87; ГОСТ 1759.1-82; ГОСТ 1759.2-82; ГОСТ 1759.4-87; ГОСТ 8724-2002; ГОСТ 12414-94; ГОСТ 16093-2004; ГОСТ 17769-83; ГОСТ 24705-2004; ГОСТ Р 50795-95 |
| Область применения: | Настоящий стандарт распространяется на болты с шестигранной головкой с диаметрами резьбы от М8 до М64 с мелким шагом резьбы класса точности А (для резьбы до М24 и номинальных длин до 10d, но не более 150 мм) и класса точности В (для резьбы более М24 или для номинальных длин более 10d или более 150 мм) |
|
| Расположен в: |
|