| Обозначение: |    ГОСТ 7023-89 | 
| Статус: | действующий | 
| Название рус.: | Машины горизонтально-ковочные с вертикальным разъемом матриц. Параметры и размеры. Нормы точности | 
| Название англ.: | Horizontal forging machines with vertical joint of dies. Parameters and dimensions. Norms of accuracy | 
| Дата актуализации текста: | 06.04.2015 | 
| Дата актуализации описания: | 01.07.2023 | 
| Дата издания: | 01.09.1998 | 
| Дата введения: | 01.01.1990 | 
| Код ОКП: | 382610 | 
| Взамен: |  ГОСТ 7023-70; ГОСТ 10016-80 | 
| Содержит требования: | СТ СЭВ 1831-79;СТ СЭВ 6201-88 | 
| Нормативные ссылки: |  ГОСТ 577-68; ГОСТ 3749-77; ГОСТ 8026-92; ГОСТ 9038-90; ГОСТ 15961-89 | 
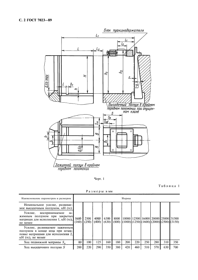
| Область применения: | Настоящий стандарт распространяется на горизонтально-ковочные машины (ГКМ) с вертикальным разъемом матриц общего назначения с одной подвижной матрицей, предназначенные для горячей штамповки в многоручьевых штампах от прутка и из штучных заготовок сплошного и полого сечения. Стандарт распространяется на горизонтально-ковочные машины, изготавливаемые для нужд народного хозяйства и экспорта | 
| Список изменений: | №1 от 01.01.1990 (рег. 25.04.1989) «Срок действия продлен» | 
 | 
| Расположен в: | 
  |