| ||||||||||||||||||||||||||||||||||
Скачать ГОСТ 5382-91 Цементы и материалы цементного производства. Методы химического анализаДата актуализации: 01.06.2025
| ||||||||||||||||||||||||||||||||||
| Обозначение: | ![]() ГОСТ 5382-91 |
| Статус: | заменён |
| Название рус.: | Цементы и материалы цементного производства. Методы химического анализа |
| Название англ.: | Cements and materials for cement production. Chemical analysis methods |
| Дата актуализации текста: | 06.04.2015 |
| Дата актуализации описания: | 01.07.2023 |
| Дата издания: | 01.11.2002 |
| Дата введения: | 01.07.1991 |
| Дата окончания срока действия: | 01.06.2020 |
| Взамен: | ГОСТ 5382-73; ГОСТ 9552-76 |
| Заменяющий: | ГОСТ 5382-2019 |
| Нормативные ссылки: | ГОСТ 8.315-97; ГОСТ 8.326-89; ГОСТ 8.531-85; ГОСТ 8.532-85; ГОСТ 12.1.010-76; ГОСТ 12.1.019-79; ГОСТ 12.2.008-75; ГОСТ 12.4.004-74; ГОСТ 12.4.011-89; ГОСТ 12.4.021-75; ГОСТ 12.4.028-76; ГОСТ 12.4.103-83; ГОСТ 61-75; ГОСТ 83-79; ГОСТ 195-77; ГОСТ 199-78; ГОСТ 1277-75; ГОСТ 1381-73; ГОСТ 1625-89; ГОСТ 1770-74; ГОСТ 3118-77; ГОСТ 3158-75; ГОСТ 3639-79; ГОСТ 3652-69; ГОСТ 3757-75; ГОСТ 3758-75; ГОСТ 3760-79; ГОСТ 3765-78; ГОСТ 3770-75; ГОСТ 3771-74; ГОСТ 3773-72; ГОСТ 4108-72; ГОСТ 4139-75; ГОСТ 4145-74; ГОСТ 4147-74; ГОСТ 4198-75; ГОСТ 4199-76; ГОСТ 4204-77; ГОСТ 4217-77; ГОСТ 4220-75; ГОСТ 4221-75; ГОСТ 4233-77; ГОСТ 4234-77; ГОСТ 4328-77; ГОСТ 4329-77; ГОСТ 4332-76; ГОСТ 4461-77; ГОСТ 4463-76; ГОСТ 4478-78; ГОСТ 4518-75; ГОСТ 4523-77; ГОСТ 4530-76; ГОСТ 4919.2-77; ГОСТ 5456-79; ГОСТ 5632-72; ГОСТ 5712-78; ГОСТ 5841-74; ГОСТ 6259-75; ГОСТ 6552-80; ГОСТ 6563-75; ГОСТ 6613-86; ГОСТ 6709-72; ГОСТ 7298-79; ГОСТ 8429-77; ГОСТ 8677-76; ГОСТ 9147-80; ГОСТ 9656-75; ГОСТ 10163-76; ГОСТ 10164-75; ГОСТ 10484-78; ГОСТ 10521-78; ГОСТ 10652-73; ГОСТ 10929-76; ГОСТ 10931-74; ГОСТ 11293-89; ГОСТ 18300-87; ГОСТ 20298-74; ГОСТ 20478-75; ГОСТ 20490-75; ГОСТ 22180-76; ГОСТ 22867-77; ГОСТ 24104-88; ГОСТ 24363-80; ГОСТ 25336-82; ГОСТ 25664-83; ГОСТ 27067-86; ГОСТ 27654-88; ГОСТ 29058-91; ГОСТ 29169-91; ГОСТ 29227-91; ГОСТ 29228-91; ГОСТ 29229-91; ГОСТ 29251-91; ГОСТ 29252-91; ГОСТ 29253-91;ТУ 6-09-07-574-75;ТУ 6-09-07-979-77;ТУ 6-09-07-996-77;ТУ 6-09-246-74;ТУ 6-09-1181-76;ТУ 6-09-1368-78;ТУ 6-09-1418-78;ТУ 6-09-1760-72;ТУ 6-09-1887-77;ТУ 6-09-2166-77;ТУ 6-09-2448-79;ТУ 6-09-3728-78;ТУ 6-09-3835-77;ТУ 6-09-3970-75;ТУ 6-09-3973-75;ТУ 6-09-4530-77;ТУ 6-09-4756-79;ТУ 6-09-4758-67;ТУ 6-09-5360-87;НРБ-76/87;ОСП-72/87 |
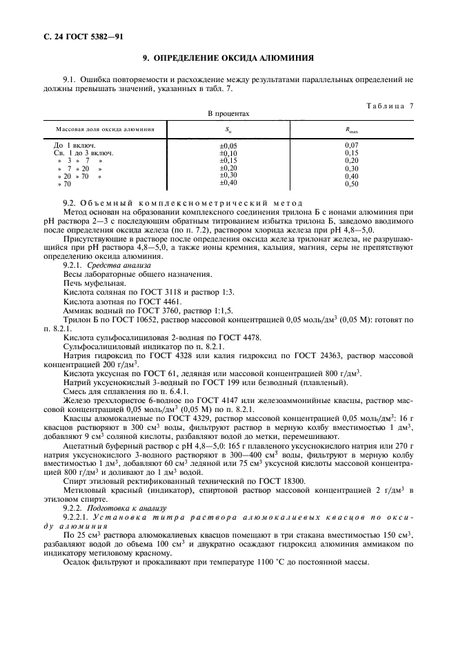
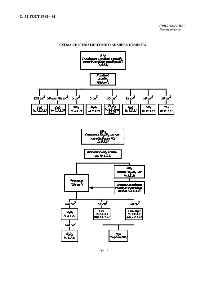
| Область применения: | Настоящий стандарт распространяется на цементы, клинкер, сырьевые смеси, минеральные добавки и сырье, применяемые в цементном производстве, и устанавливает нормы точности выполения анализов химического состава, а также методы определения массовой доли влаги, потери при прокаливании, нерастворимого остатка, оксидов кремния, кальция (в том числе свободного), магния, железа, алюминия, титана, серы, калия, натрия, марганца, хрома, фосфора, бария, хлор-иона, фтор-иона |
| Расположен в: | |

























































