| Обозначение: |  ГОСТ 21341-75 |
| Статус: | заменён |
| Название рус.: | Пластмассы и эбонит. Метод определения теплостойкости по Мартенсу |
| Название англ.: | Plastics and ebonite. Method of determining the Martens heat resistance temperature |
| Дата актуализации текста: | 06.04.2015 |
| Дата актуализации описания: | 01.07.2023 |
| Дата издания: | 01.09.1980 |
| Дата введения: | 01.01.1978 |
| Дата окончания срока действия: | 01.04.2016 |
| Код ОКП: | 224000;225000;226000;258000 |
| Взамен: | ГОСТ 15089-69; ГОСТ 272-41 |
| Заменяющий: | ГОСТ 21341-2014 |
| Содержит требования: | СТ СЭВ 895-78 |
| Нормативные ссылки: | ГОСТ 269-66; ГОСТ 12423-66 |
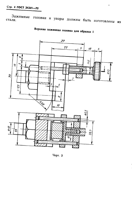
| Область применения: | Настоящий стандарт распространяется на пластмассы и эбонит и устанавливает метод определения теплостойкости по Мартенсу. Стандарт не распространяется на материалы, у которых: теплостойкость по Мартенсу ниже 313 К (40 град. С); кривая зависимости деформации от температуры, получаемая при деформации до 6 мм при помощи дополнительных устройств (индикаторной головки), имеет S-образную форму |
| Список изменений: | №1 от 01.12.1979 (рег. 18.02.1980) «Срок действия продлен» |
|
| Расположен в: |
|