| Обозначение: |  ГОСТ 10218-77 |
| Статус: | действующий |
| Название рус.: | Криптон и криптоноксеноновая смесь. Технические условия |
| Название англ.: | Krypton and krypton-xenon mixture. Specification |
| Дата актуализации текста: | 06.04.2015 |
| Дата актуализации описания: | 01.01.2021 |
| Дата издания: | 01.09.1983 |
| Дата введения: | 01.01.1979 |
| Код ОКП: | 211472 |
| Взамен: | ГОСТ 10218-67 |
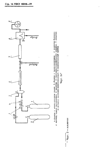
| Область применения: | Настоящий стандарт распространяется на газообразные продукты - криптон и криптоноксеноновую смесь, которую получают из атмосферного воздуха способом низкотемпературной ректификации с промежуточной очисткой от углеводородов и продуктов их окисления. Криптон получают из криптоноксеноновой смеси низкотемпературной ректификацией или другими методами |
| Список изменений: | №1 от 01.12.1983 (рег. 25.07.1983) «Срок действия продлен» №2 от 01.01.1988 (рег. 25.08.1987) «Срок действия продлен» №3 от 01.01.1994 (рег. 01.06.1993) «Срок действия продлен» |
|
| Расположен в: |
|