| Обозначение: |  ГОСТ 10071-89 |
| Статус: | действующий |
| Название рус.: | Калибры для однозаходной трапецеидальной резьбы. Допуски |
| Название англ.: | Gauges for trapezoidal tread. Tolerances |
| Дата актуализации текста: | 06.04.2015 |
| Дата актуализации описания: | 01.07.2023 |
| Дата издания: | 01.07.2003 |
| Дата введения: | 01.07.1990 |
| Код ОКП: | 393160 |
| Взамен: | ГОСТ 10071-79 |
| Содержит требования: | СТ СЭВ 353-88 |
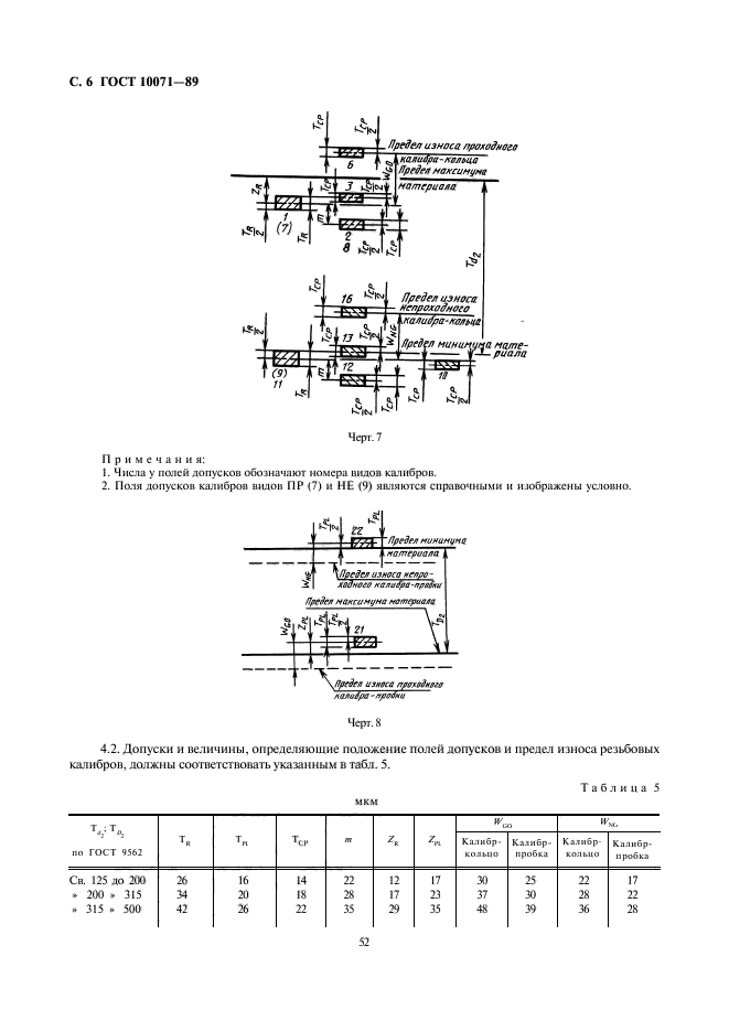
| Нормативные ссылки: | ГОСТ 9484-81; ГОСТ 9562-81; ГОСТ 24737-81 |
| Область применения: | Настоящий стандарт распространяется на резьбовые и гладкие калибры для контроля однозаходной трапецеидальной резьбы с профилем и устанавливает виды калибров, профиль резьбы, длину рабочей части, допуски и формулы для определения размеров резьбовых и гладких калибров |
|
| Расположен в: |
|