| Обозначение: |  ГОСТ 7396.1-89 |
| Статус: | действующий |
| Название рус.: | Соединители электрические штепсельные бытового и аналогичного назначения. Основные размеры |
| Название англ.: | Plugs (electrical) and socket-outlets for domestic and similar general use. Standards |
| Дата актуализации текста: | 06.04.2015 |
| Дата актуализации описания: | 01.07.2023 |
| Дата издания: | 01.07.2003 |
| Дата введения: | 01.07.1990 |
| Код ОКП: | 346400 |
| Взамен в части: | ГОСТ 7396-85 в части разд. 2 |
| Содержит требования: | IEC 60083(1975) |
| Нормативные ссылки: | ГОСТ 7396.0-89; ГОСТ 8594-80; ГОСТ Р 51322.1-99 |
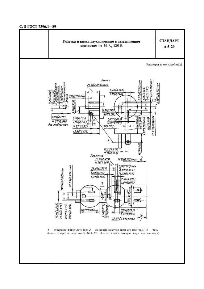
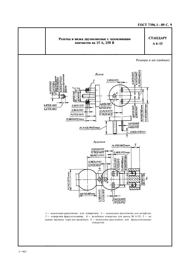
| Область применения: | Настоящий стандарт распространяется на штепсельные соединители с заземляющими контактами и без них (одноместные и двуместные розетки, разъемные и неразъемные вилки, разветвители и удлинители) для присоединения к электрической сети переменного тока электрических приемников бытового и аналогичного назначения с номинальными токами до 20 А и напряжением до 277 В, поставляемые для нужд народного хозяйства и экспорта, и устанавливает основные размеры соединителей, а также требования, относящиеся к взаимозаменяемости и безопасности соединителей. Настоящий стандарт не распространяется на соединители, встраиваемые в приборы, а также предназначенные для эксплуатации в пожароопасных и взрывоопасных помещениях |
| Список изменений: | №1 от 01.01.1993 (рег. 16.09.1992) «Поправка» |
|
| Расположен в: |
|