| ||||||||||||||||||||||||||||||||
 Скачать ГОСТ 9062-89 Жеребейки для чугунных и стальных отливок. Общие технические условияДата актуализации: 01.06.2025
 | ||||||||||||||||||||||||||||||||
| Обозначение: | ![]()   ГОСТ 9062-89 | 
| Статус: | действующий | 
| Название рус.: | Жеребейки для чугунных и стальных отливок. Общие технические условия | 
| Название англ.: | Chaplets for iran and steel. General specifications | 
| Дата актуализации текста: | 06.04.2015 | 
| Дата актуализации описания: | 01.07.2023 | 
| Дата издания: | 08.02.1990 | 
| Дата введения: | 01.01.1991 | 
| Код ОКП: | 396600 | 
| Взамен: |  ГОСТ 9062-59 | 
| Нормативные ссылки: |  ГОСТ 9.303-84; ГОСТ 9.306-85; ГОСТ 503-81; ГОСТ 2590-88; ГОСТ 5264-80; ГОСТ 5781-82; ГОСТ 13345-85; ГОСТ 14771-76; ГОСТ 17305-71; ГОСТ 19903-74; ГОСТ 25069-81 | 
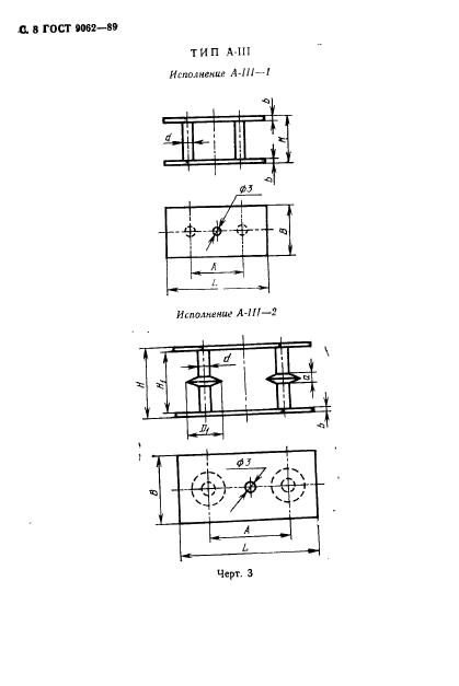
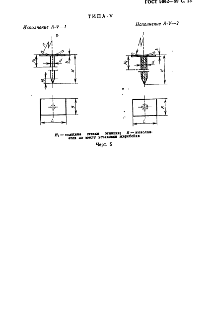
| Область применения: | Настоящий стандарт распространяется на жеребейки, используемые для получения чугунных и стальных отливок в песчанных формах | 
| Расположен в: | |
























