| Обозначение: |    ГОСТ ИСО 16902-1-2006 | 
| Статус: | действующий | 
| Название рус.: | Шум машин. Технический метод определения уровней звуковой мощности насосов гидроприводов по интенсивности звука | 
| Название англ.: | Noise of machines. Engineering method for determination of the sound power levels of pumps using sound intensity techniques | 
| Дата актуализации текста: | 06.04.2015 | 
| Дата актуализации описания: | 01.07.2023 | 
| Дата регистрации: | 07.12.2006 | 
| Дата издания: | 10.09.2007 | 
| Дата введения: | 01.10.2007 | 
| Аутентичен стандартам: | ISO 16902-1:2003 | 
| Нормативные ссылки: | ISO 3448;ISO 3744:1994;ISO 5598;ISO 6743-4;ISO 9614-1:1993;ISO 9614-2:1996;ISO 9614-3:2002;IEC 61043 | 
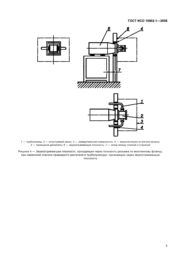
| Область применения: | Настоящий стандарт устанавливает метод определения уровней звуковой мощности насосов гидропроводов на основе ИСО 9614-1 и ИСО 9614-2 при контролируемых условиях установки и режиме работы. Уровень звуковой мощности может включать шум, излучаемый любыми трубопроводами, находящимися внутри измерительной поверхности. Стандарт применяют для сравнения уровней воздушного шума насосов любого типа (совместно с гидроаппаратами, электромагнитами, приводными механизмами, муфтами или другими вспомогательными устройствами, необходимыми для эксплуатации насоса), преобразующих механическую энергию вращения в гидравлическую энергию | 
 | 
| Расположен в: | 
  |