| Обозначение: |    ГОСТ 8713-79 | 
| Статус: | действующий | 
| Название рус.: | Сварка под флюсом. Соединения сварные. Основные типы, конструктивные элементы и размеры | 
| Название англ.: | Flux welding. Welded joints. Main types design elements and dimensions | 
| Дата актуализации текста: | 06.04.2015 | 
| Дата актуализации описания: | 01.07.2023 | 
| Дата издания: | 01.01.2007 | 
| Дата введения: | 01.01.1981 | 
| Код ОКП: | 060200 | 
| Взамен: |  ГОСТ 8713-70 | 
| Нормативные ссылки: |  ГОСТ 11969-93; ГОСТ 16037-80 | 
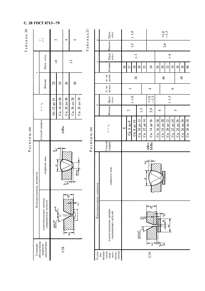
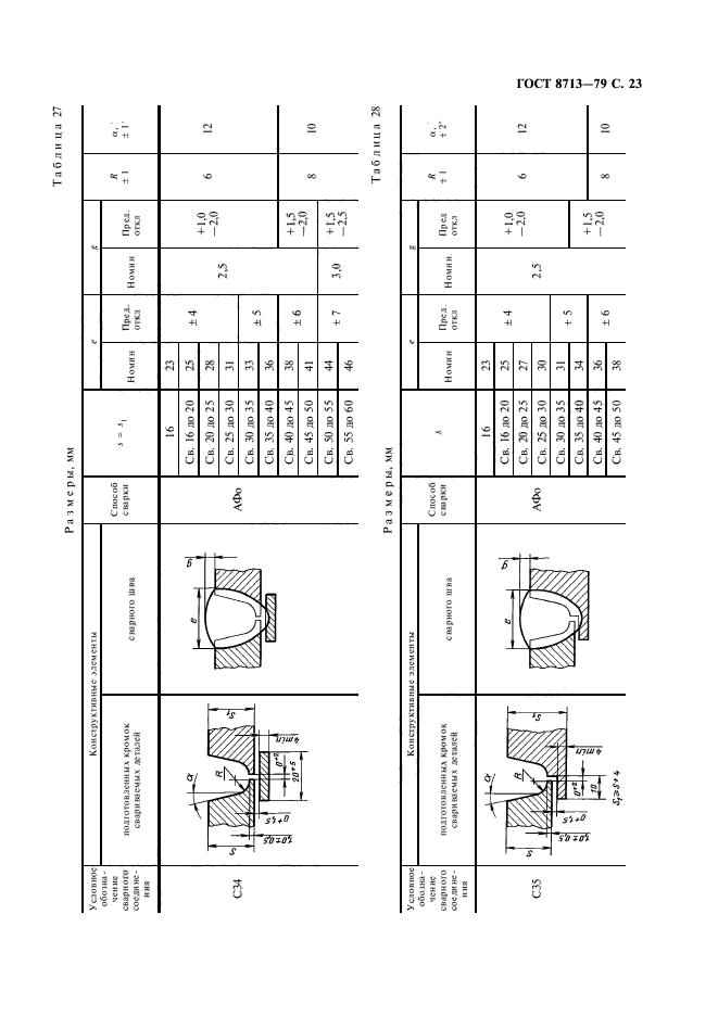
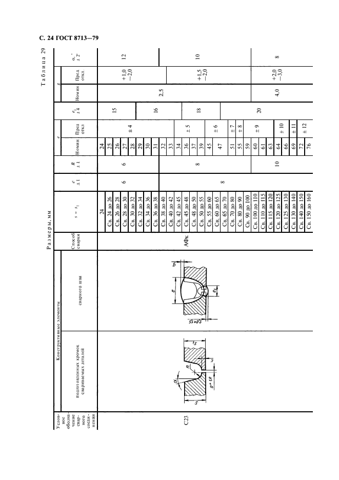
| Область применения: | Настоящий стандарт распространяется на соединения из сталей, а также сплавов на железоникелевой и никелевой основах, выполняемых сваркой под флюсом, и устанавливает основные типы, конструктивные элементы и размеры сварных соединений. Стандарт не распространяется на сварные соединения стальных трубопроводов по ГОСТ 16037 | 
| Список изменений: | №0 от 01.06.2007 (рег. 01.06.2007) «Дата введения перенесена» №1 от 01.01.1987 (рег. 26.08.1986) «Срок действия продлен» №2 от 01.03.1989 (рег. 03.01.1989) «Срок действия продлен» №3 от 01.01.1991 (рег. 02.07.1990) «Срок действия продлен» | 
| Приложение №1: | Поправка к ГОСТ 8713-79 | 
 | 
| Расположен в: | 
  |