| ||||||||||||||||||||||||||||
Скачать ГОСТ Р 71631-2024 Сосуды и аппараты. Опоры вертикальных сосудов и аппаратов. Общие технические требованияДата актуализации: 01.06.2025
| ||||||||||||||||||||||||||||
| Обозначение: | ![]() ГОСТ Р 71631-2024 |
| Статус: | действующий |
| Название рус.: | Сосуды и аппараты. Опоры вертикальных сосудов и аппаратов. Общие технические требования |
| Название англ.: | Vessels and apparatus. Supports for vertical vessels and apparatus. General technical requirements |
| Дата актуализации текста: | 01.06.2025 |
| Дата актуализации описания: | 01.06.2025 |
| Дата издания: | 20.12.2024 |
| Дата введения: | 01.03.2025 |
| Нормативные ссылки: | ГОСТ 535; ГОСТ 550; ГОСТ 5520; ГОСТ 8731; ГОСТ 8733; ГОСТ 14637; ГОСТ 16093; ГОСТ 19281; ГОСТ 24379.0; ГОСТ 25346; ГОСТ 25347; ГОСТ 30893.1; ГОСТ 31838; ГОСТ 31842; ГОСТ 32528; ГОСТ 34233.5-2017; ГОСТ 34347-2017 |
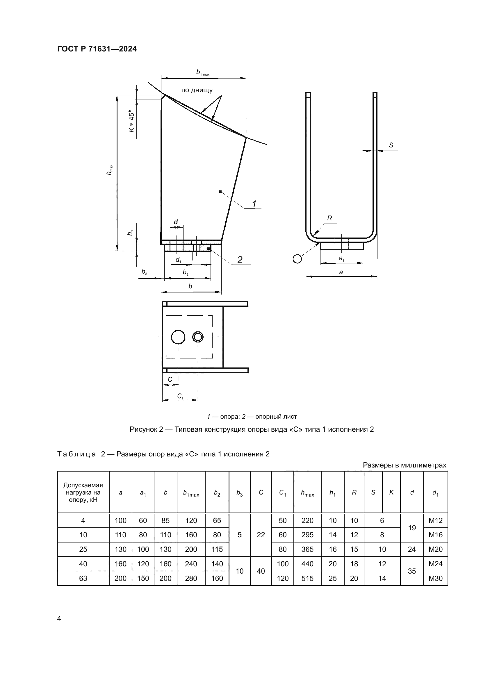
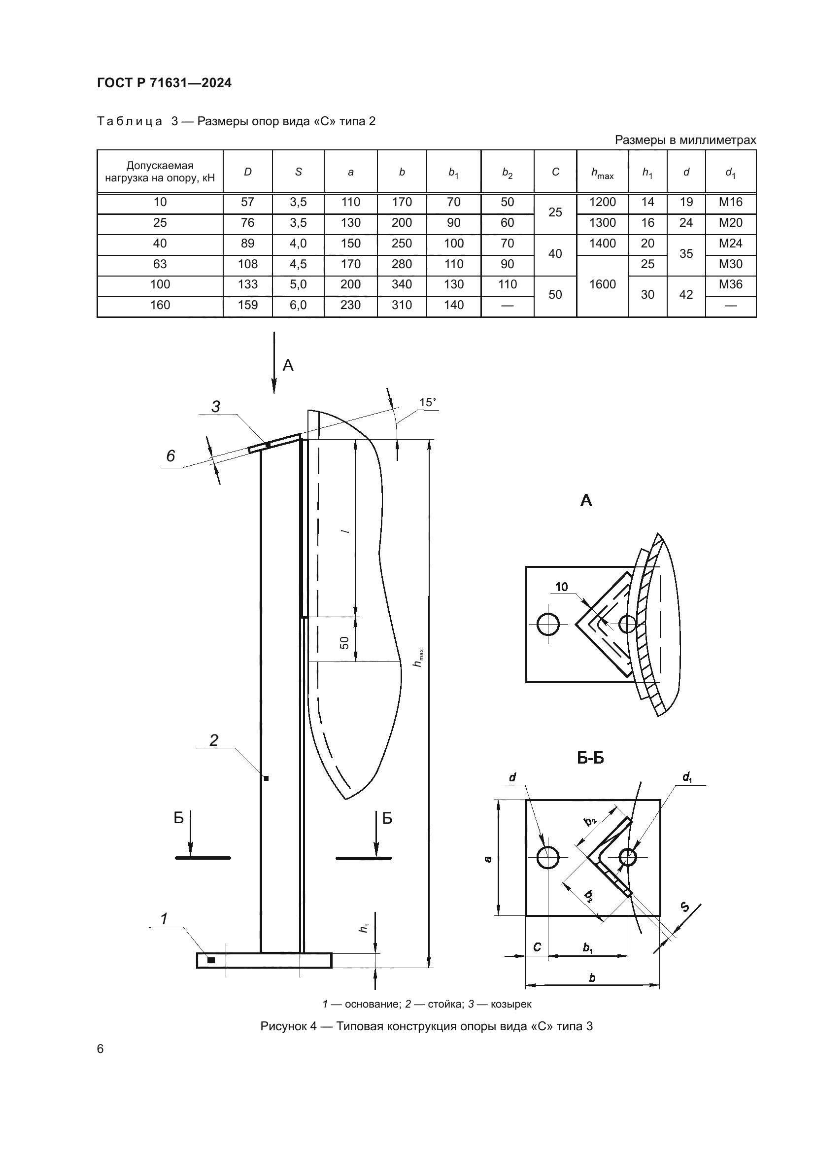
| Область применения: | Настоящий стандарт распространяется на опоры-стойки и опоры-лапы для вертикальных сосудов и аппаратов, изготавливаемых в соответствии с ГОСТ 34347, ГОСТ 31842, ГОСТ 31838 |
| Расположен в: | |























