Информационная система
«Ёшкин Кот»

Скачать базу одним архивом
Скачать обновления
История создания базы
Карта сайта

Скачать ГОСТ Р МЭК 62382-2016 Системы управления в обрабатывающей промышленности. Контроль электрических и измерительных контуров

Дата актуализации: 01.06.2025

ГОСТ Р МЭК 62382-2016

Системы управления в обрабатывающей промышленности. Контроль электрических и измерительных контуров

Обозначение: ГОСТ Р МЭК 62382-2016
Статус:действующий
Название рус.:Системы управления в обрабатывающей промышленности. Контроль электрических и измерительных контуров
Название англ.:Control systems in the process industry. Electrical and instrumentation loop check
Дата актуализации текста:07.08.2016
Дата актуализации описания:01.07.2023
Дата издания:26.06.2020
Дата введения:01.04.2017
Аутентичен стандартам:IEC 62382(2012)
Нормативные ссылки:IEC 61131;IEC 62337;IEC 62424;IEC 62708
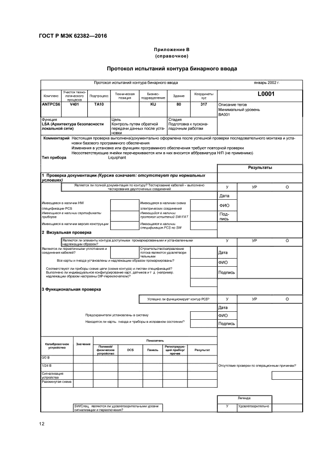
Область применения:В настоящем стандарте приведено описание рекомендуемых пошаговых операций по проведению контроля путем обратной передачи данных, состоящих из действий, выполняемых в период между завершением строительства контура (включая установку и прозвонку) и началом проведения холодной пусконаладки. Настоящий стандарт применяется на стадиях строительства заводов и расширении/модернизации установок электрооборудования и контрольно-измерительных приборов (КИП) на действующих заводах, включая программируемые логические контроллеры (PLC), системы автоматизации здания (BAS), распределенные системы управления (DCS), смонтированные на панели и полевую измерительную аппаратуру. В настоящем стандарте не приведено описание детальной проверки систем энергораспределения, за исключением тех, которые связаны с проверяемыми замкнутыми цепями (т. е. пускового устройства электродвигателя или электропитания четырехпроводного датчика)
Расположен в:Государственные стандарты Общероссийский классификатор стандартов Машиностроение Промышленные автоматизированные системы Измерение и контроль производственного процесса Классификатор государственных стандартов Общетехнические и организационно-методические стандарты Система документации Система стандартов в области охраны природы и улучшения использования природных ресурсов, безопасности труда, научной организации труда
ГОСТ Р МЭК 62382-2016ГОСТ Р МЭК 62382-2016ГОСТ Р МЭК 62382-2016ГОСТ Р МЭК 62382-2016ГОСТ Р МЭК 62382-2016ГОСТ Р МЭК 62382-2016ГОСТ Р МЭК 62382-2016ГОСТ Р МЭК 62382-2016ГОСТ Р МЭК 62382-2016ГОСТ Р МЭК 62382-2016ГОСТ Р МЭК 62382-2016ГОСТ Р МЭК 62382-2016ГОСТ Р МЭК 62382-2016ГОСТ Р МЭК 62382-2016ГОСТ Р МЭК 62382-2016ГОСТ Р МЭК 62382-2016ГОСТ Р МЭК 62382-2016ГОСТ Р МЭК 62382-2016ГОСТ Р МЭК 62382-2016ГОСТ Р МЭК 62382-2016ГОСТ Р МЭК 62382-2016ГОСТ Р МЭК 62382-2016ГОСТ Р МЭК 62382-2016

© 2013 Ёшкин Кот :-) Карта сайта