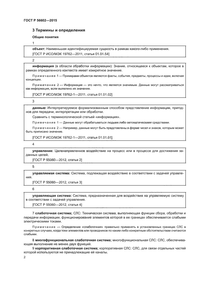
Информационная система
«Ёшкин Кот»

Скачать базу одним архивом
Скачать обновления
История создания базы
Карта сайта

Скачать ГОСТ Р 56602-2015 Слаботочные системы. Кабельные системы. Термины и определения

Дата актуализации: 01.06.2025

ГОСТ Р 56602-2015

Слаботочные системы. Кабельные системы. Термины и определения

Обозначение: ГОСТ Р 56602-2015
Статус:действующий
Название рус.:Слаботочные системы. Кабельные системы. Термины и определения
Дата актуализации текста:01.01.2021
Дата актуализации описания:01.07.2023
Дата издания:01.06.2020
Дата введения:01.03.2016
Нормативные ссылки:ГОСТ 1.1;ГОСТ 26883;ГОСТ Р 52292;ГОСТ Р 52551;ГОСТ Р 53114;ГОСТ Р 55060;ГОСТ Р ИСО/МЭК 19762-1
Область применения:Настоящий стандарт устанавливает термины и определения понятий в области слаботочных систем и подсистем любых технических систем, являющихся слаботочными, в том числе кабельных систем, систем передачи данных, синхронизации и уплотнения, обеспечивающих автоматизацию процессов сбора, обработки и передачи информации. Термины, установленные настоящим стандартом, рекомендуются для применения во всех видах документации и литературы по данной научно-технической отрасли, входящих в сферу действия работ по стандартизации и (или) использующих результаты этих работ. Настоящий стандарт следует применять совместно с ГОСТ 1.1, ГОСТ 26883, ГОСТ Р 52292, ГОСТ Р 52551, ГОСТ Р 53114, ГОСТ Р 55060, ГОСТ Р ИСО/МЭК 19762-1
Расположен в:Государственные стандарты Общероссийский классификатор стандартов Телекоммуникации.аудио-и видеотехника Телекоммуникационные системы Системы передачи Классификатор государственных стандартов Электронная техника, радиоэлектроника и связь Общие правила и нормы по электронной технике, радиоэлектронике и связи Нормы расчета и проектирования
ГОСТ Р 56602-2015ГОСТ Р 56602-2015ГОСТ Р 56602-2015ГОСТ Р 56602-2015ГОСТ Р 56602-2015ГОСТ Р 56602-2015ГОСТ Р 56602-2015ГОСТ Р 56602-2015ГОСТ Р 56602-2015ГОСТ Р 56602-2015ГОСТ Р 56602-2015ГОСТ Р 56602-2015ГОСТ Р 56602-2015ГОСТ Р 56602-2015ГОСТ Р 56602-2015ГОСТ Р 56602-2015ГОСТ Р 56602-2015ГОСТ Р 56602-2015ГОСТ Р 56602-2015ГОСТ Р 56602-2015ГОСТ Р 56602-2015ГОСТ Р 56602-2015ГОСТ Р 56602-2015ГОСТ Р 56602-2015ГОСТ Р 56602-2015ГОСТ Р 56602-2015ГОСТ Р 56602-2015ГОСТ Р 56602-2015ГОСТ Р 56602-2015ГОСТ Р 56602-2015ГОСТ Р 56602-2015ГОСТ Р 56602-2015

© 2013 Ёшкин Кот :-) Карта сайта