| Обозначение: |  ГОСТ Р 55616.2-2014 |
| Статус: | действующий |
| Название рус.: | Возобновляемая энергетика. Установки солнечные термические и их компоненты. Системы, изготовленные в заводских условиях. Часть 2. Методы испытаний |
| Название англ.: | Renewable power engineering. Thermal solar systems and components. Solar collectors. Factory made systems. Part 2. Test methods |
| Дата актуализации текста: | 06.04.2015 |
| Дата актуализации описания: | 01.07.2023 |
| Дата издания: | 02.03.2015 |
| Дата введения: | 01.07.2016 |
| Содержит требования: | EN 12976-2:2006 |
| Нормативные ссылки: | ГОСТ Р ИСО/ТО 10217-2010; ГОСТ Р 50571.3-2009; ГОСТ Р 51232-98; ГОСТ Р 51594-2000; ГОСТ Р 55616-2013; ГОСТ Р 55617.2-2013; ГОСТ 2761-84 |
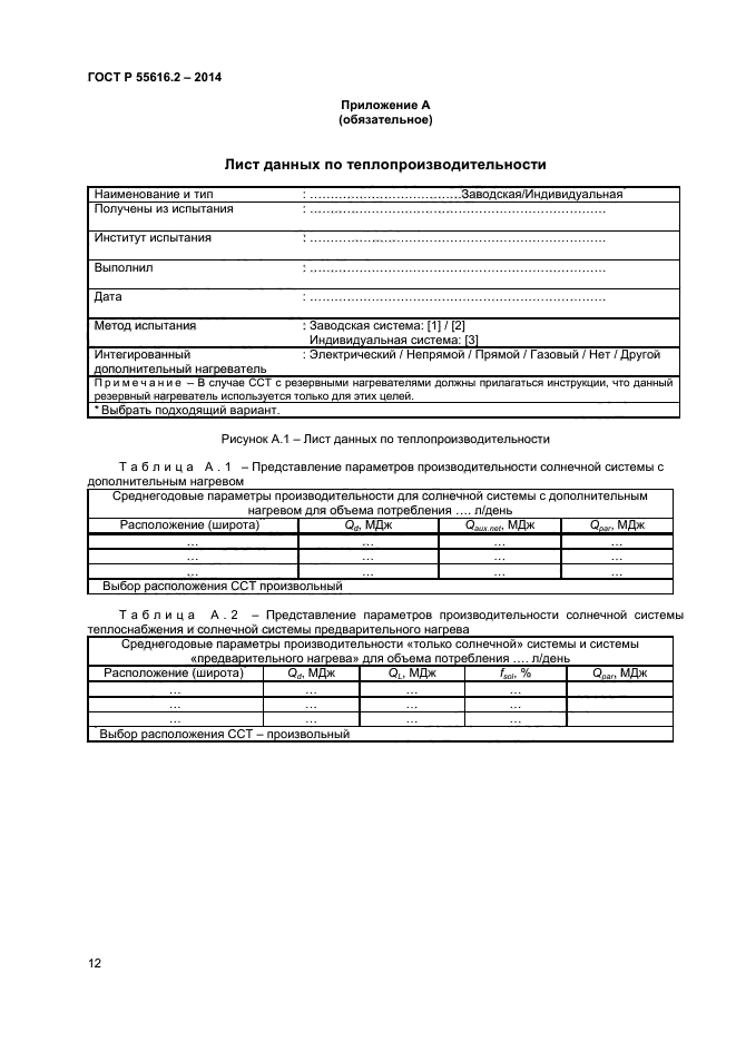
| Область применения: | Настоящий стандарт устанавливает методы испытаний систем солнечного теплоснабжения (ССТ или система), изготовленных заводским способом, в соответствии с требованиями, установленными в ГОСТ Р 55616. Настоящий стандарт также включает два метода испытаний по определению характеристики теплопроизводительности посредством испытания всей системы целиком |
|
| Расположен в: |
|