| ||||||||||||||||||||||||||||||||||
Скачать ГОСТ ISO 21592-2013 Машины и оборудование строительные. Машины для торкретирования бетонной смеси. Терминология и технические условияДата актуализации: 01.06.2025
| ||||||||||||||||||||||||||||||||||
| Обозначение: | ![]() ГОСТ ISO 21592-2013 |
| Статус: | действующий |
| Название рус.: | Машины и оборудование строительные. Машины для торкретирования бетонной смеси. Терминология и технические условия |
| Дата актуализации текста: | 01.06.2022 |
| Дата актуализации описания: | 01.01.2021 |
| Дата регистрации: | 27.12.2013 |
| Дата издания: | 25.11.2019 |
| Дата введения: | 01.01.2015 |
| Аутентичен стандартам: | ISO 21592:2006 |
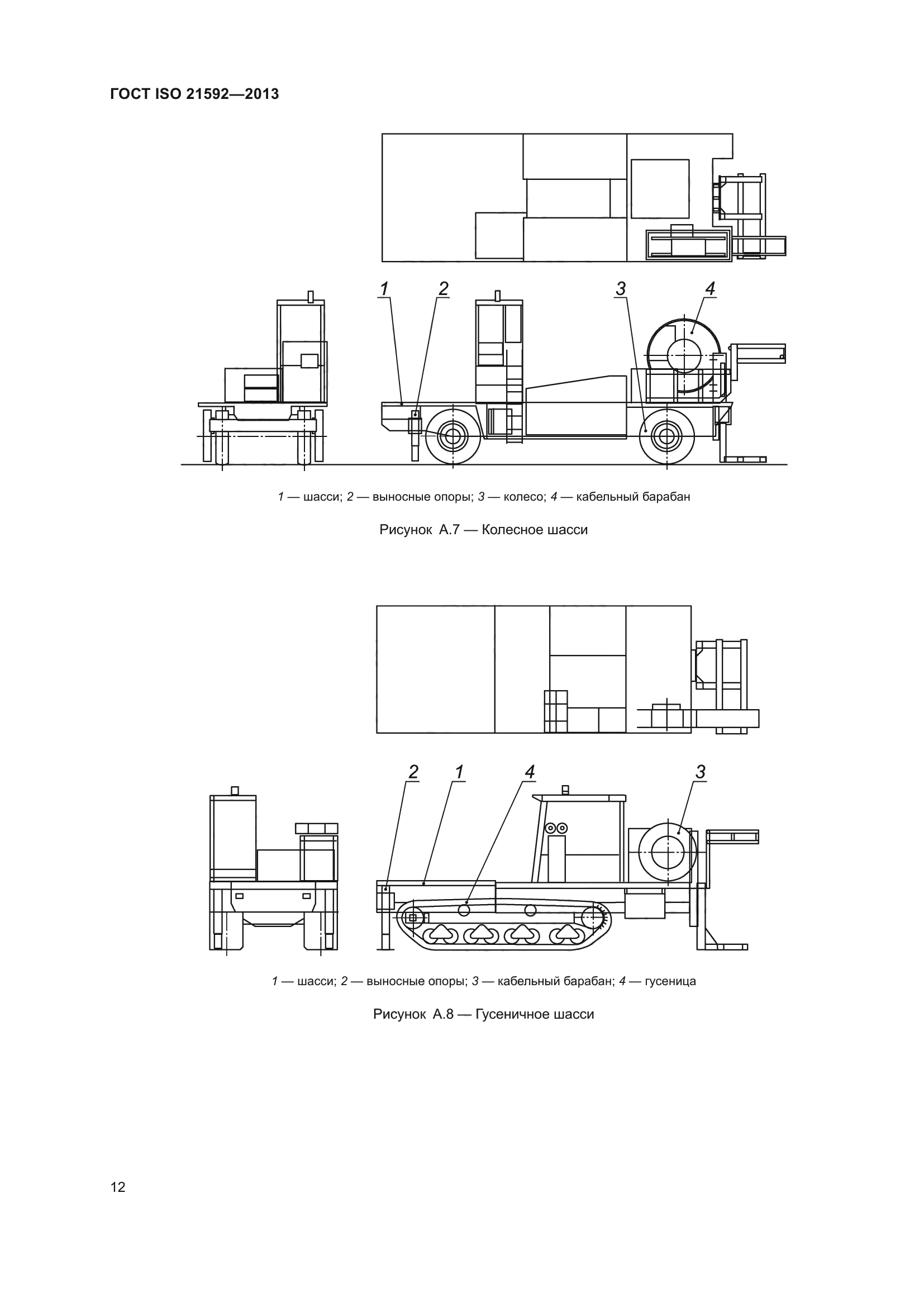
| Область применения: | Настоящий стандарт устанавливает термины и определения к машинам для торкретирования бетонной смеси, используемых для футеровки, укрепления бетонных конструкций, каменных поверхностей (шахты, тоннели), кирпичных стен, стальных конструкций и деревянных опалубок. На рисунках, приведенных в приложении А, показаны примеры типов машин для торкретирования, их конструкции и геометрические характеристики |
| Приложение №1: | Поправка к ГОСТ ISO 21592-2013 |
| Расположен в: | |





















| Обозначение: | Поправка к ГОСТ ISO 21592-2013 |
| Дата введения: | 14.03.2022 |
